Period cottage on 0.75 acre with large outbuildings and conversion potential STPP.
Detached four-bedroom cottage with period features and later extensions
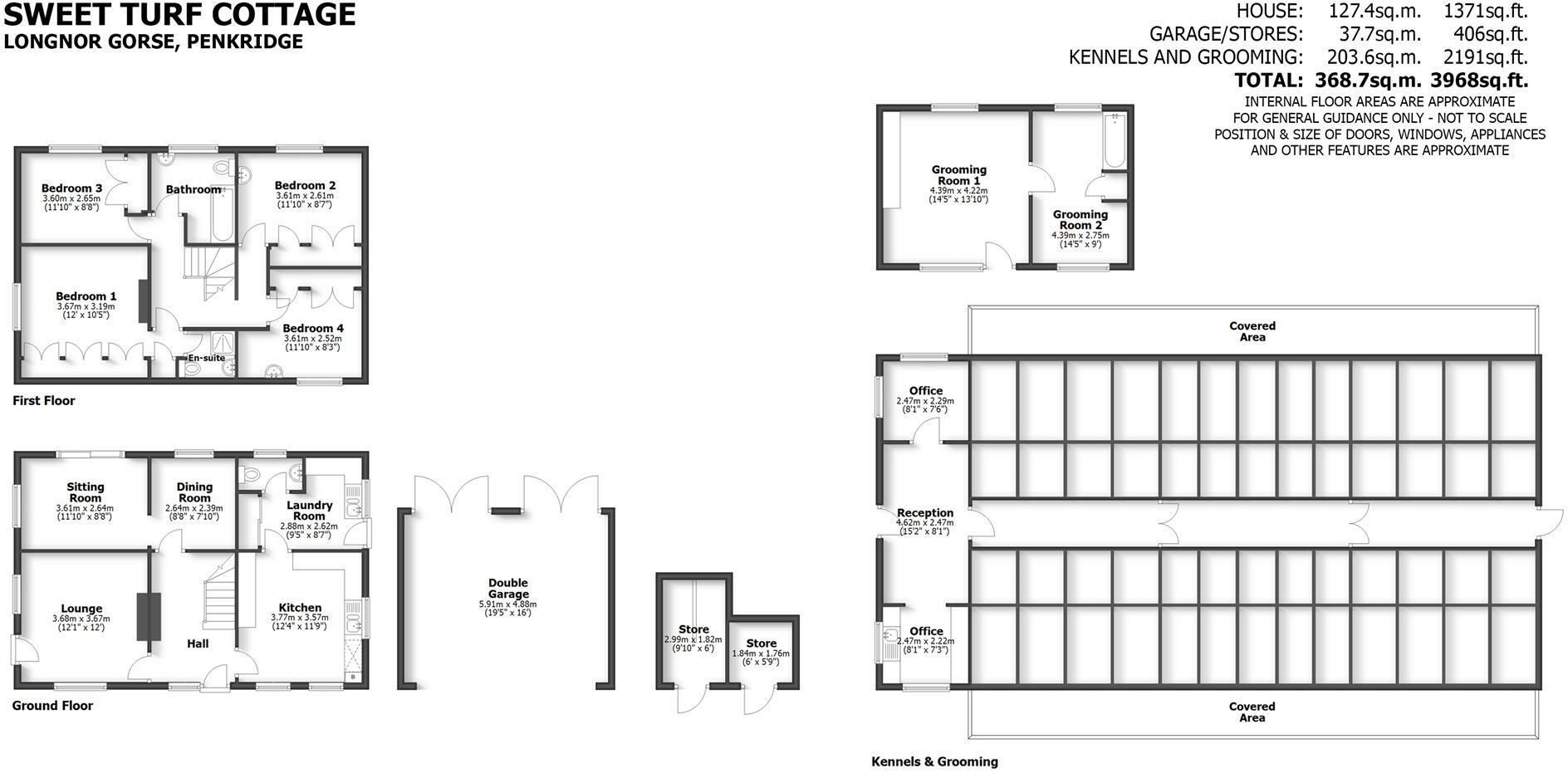
Sweet Turf Cottage is a characterful detached cottage set in about 0.75 acres in a quiet hamlet between Wheaton Aston and Church Eaton. The house combines original period features and later sympathetic extensions to provide well-proportioned living rooms, a breakfast kitchen, four double bedrooms and two bathrooms — a layout that suits families or multigenerational households. An extensive terrace, shaped lawn and mature screening hedges give private outside space for children, pets or gardening.
Practical positives include ample off-road parking, a double garage, a covered carport, and substantial outbuildings with mains power, lighting and water. The larger brick outbuilding is licensed and fitted as a 26-kennel unit (previously run as boarding kennels and grooming), so it offers clear potential for ancillary accommodation, hobby use or business conversion subject to planning and consents.
There are some important practical considerations: water is from a private well, drainage is to a septic tank and heating runs on LPG via boiler and radiators. Broadband speeds are very slow and mobile coverage is limited inside the property. The cottage's solid brick walls are assumed to be uninsulated in places, typical of a building of this age, so upgrading energy efficiency may be needed.
Overall this is a rare rural plot with flexible outbuildings and traditional character. It will suit a buyer seeking privacy, a large garden and scope to adapt or extend ancillary buildings — buyers should be prepared for off-grid services, potential energy-performance improvements and the paperwork needed for any change of use.
4 bedroom cottage for sale in Greystoke Cottage, Kiddemore Green, Brewood, ST19 — £590,000 • 4 bed • 3 bath • 1998 ft²
3 bedroom semi-detached house for sale in Oak Cottages, Oak Lane, Cannock, WS11 — £499,950 • 3 bed • 1 bath • 1723 ft²
4 bedroom semi-detached house for sale in St Elvey, Hilton Lane, Shareshill, Wolverhampton, WV10 7HU, WV10 — £525,000 • 4 bed • 2 bath • 1853 ft²
4 bedroom detached house for sale in Bridle Lane, Broad Heath, Stafford, Staffordshire, ST20 — £790,000 • 4 bed • 2 bath • 2022 ft²
2 bedroom semi-detached house for sale in Pottal Pool Road, Penkridge, Stafford, ST19 — £360,000 • 2 bed • 1 bath • 1040 ft²
2 bedroom cottage for sale in Meadow Lane, Coven Heath, Wolverhampton, WV10 — £330,000 • 2 bed • 2 bath • 991 ft²






























































































