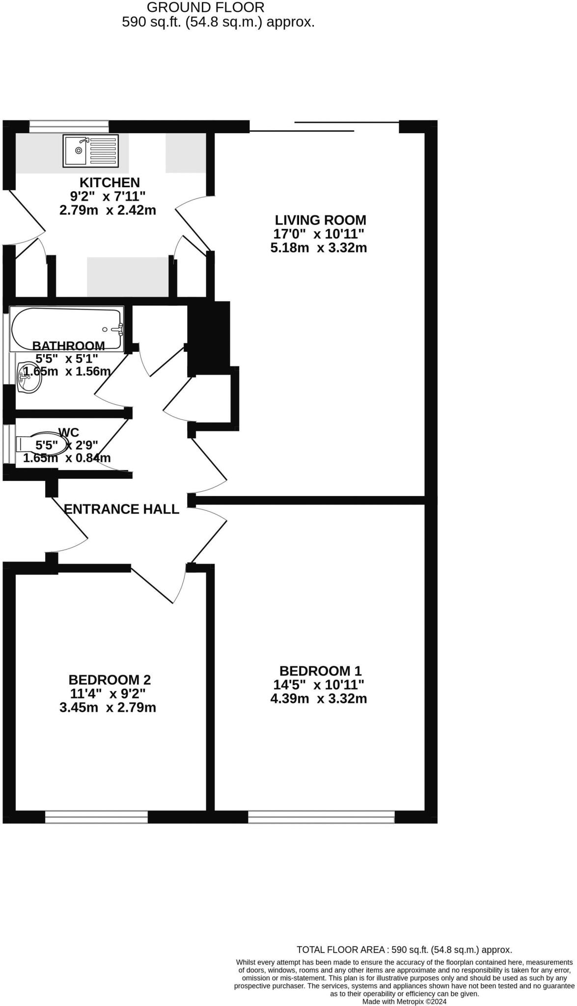
Compact detached bungalow of approximately 590 sq ft
Well-proportioned single-level living in a convenient Worle position makes this detached bungalow an attractive choice for downsizers or buyers seeking an easy-to-manage home. The layout provides two double bedrooms and a rear-facing sitting room that opens onto a beautifully planted, private garden — a genuine highlight and low-maintenance oasis.
The property has been updated with UPVC double glazing, a modern kitchen with integrated appliances and a refitted shower room, and benefits from gas central heating. Practical extras include a driveway, single garage with rear access, and freehold tenure; the sale is chain free which can simplify moving.
Buyers should note the bungalow is compact at about 590 sq ft, so generous storage and expansive living space are limited compared with larger homes. Constructed in the late 1970s/early 1980s, the build is solid with cavity walls, but the size and era mean some buyers may prefer to update finishes over time to suit personal taste.
Location strengths are clear: level walking access to supermarkets, Worle train station and bus routes, plus fast broadband and excellent mobile signal. Low flood and crime risk and an affordable council tax band add to the practical appeal for those prioritising ease and convenience.































































