Spacious retirement living with social facilities and long lease.
- Large 996 sq ft two-bedroom retirement apartment
- Built 2022 with modern finishes and SAP up to 82
- On-site chef-run bistro, communal lounge and guest suite
- 24/7 on-site manager plus tailored care and domestic support
- Leasehold with 996 years remaining
- Third-floor, north-facing — check access arrangements for mobility
- Electric room heaters; potentially higher running costs than gas
- Local area records above-average crime rate
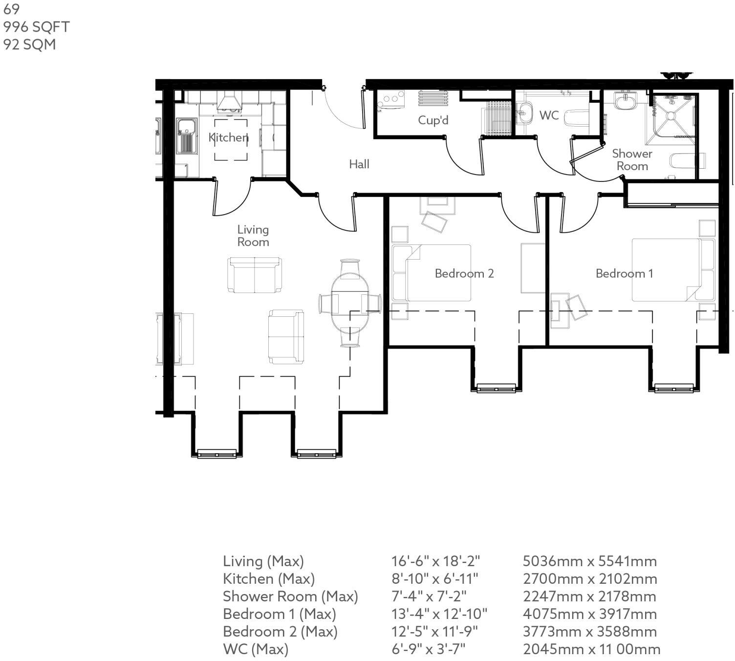
This bright two-bedroom retirement apartment sits in the heart of historic Buxton, within a purpose-built development designed for older residents. At 996 sq ft the layout feels generous for retirement living, with a fitted kitchen, ensuite, walk-in wardrobe and an additional guest WC. Communal landscaped gardens, resident parking and a chef-run bistro offer easy living and social opportunities on-site.
Practical details important to buyers: the property is leasehold with 996 years remaining and was constructed in 2022, so major structure and finishes are new. Heating is by electric room heaters which provide simple control but can be more expensive than gas centrally heated systems. The apartment faces north on the third floor — please check access arrangements if mobility is a concern.
Lifestyle facilities are a strong selling point: 24/7 on-site manager, communal lounge and a hotel-style guest suite for visiting family. There is an active events calendar and tailored care support available should requirements change, which suits downsizers seeking both independence and community. Note the local area records above-average crime, so consider personal security measures and local policing information when viewing.
Overall this is a modern, low-maintenance apartment aimed at those wanting a sociable retirement setting with quality communal amenities and a long lease, balanced against electric heating and third-floor position which may affect running costs and accessibility.
2 bedroom retirement property for sale in Station Road,
High Peak,
SK17 6GP
, SK17 — £279,950 • 2 bed • 1 bath • 894 ft²
1 bedroom retirement property for sale in Station Road,
High Peak,
SK17 6GP
, SK17 — £191,250 • 1 bed • 1 bath • 734 ft²
2 bedroom apartment for sale in Station Road, Buxton, SK17 — £309,950 • 2 bed • 2 bath • 995 ft²
2 bedroom retirement property for sale in Station Road,
High Peak,
SK17 6GP
, SK17 — £213,750 • 2 bed • 1 bath • 807 ft²
1 bedroom apartment for sale in Station Road, Buxton, SK17 — £230,000 • 1 bed • 1 bath • 634 ft²
2 bedroom apartment for sale in Devonshire Place, Station Road, Buxton, SK17 — £325,000 • 2 bed • 2 bath • 1141 ft²


























