Spacious single-storey family home with large private gardens and double garage.
Grade II listed detached bungalow with historic character
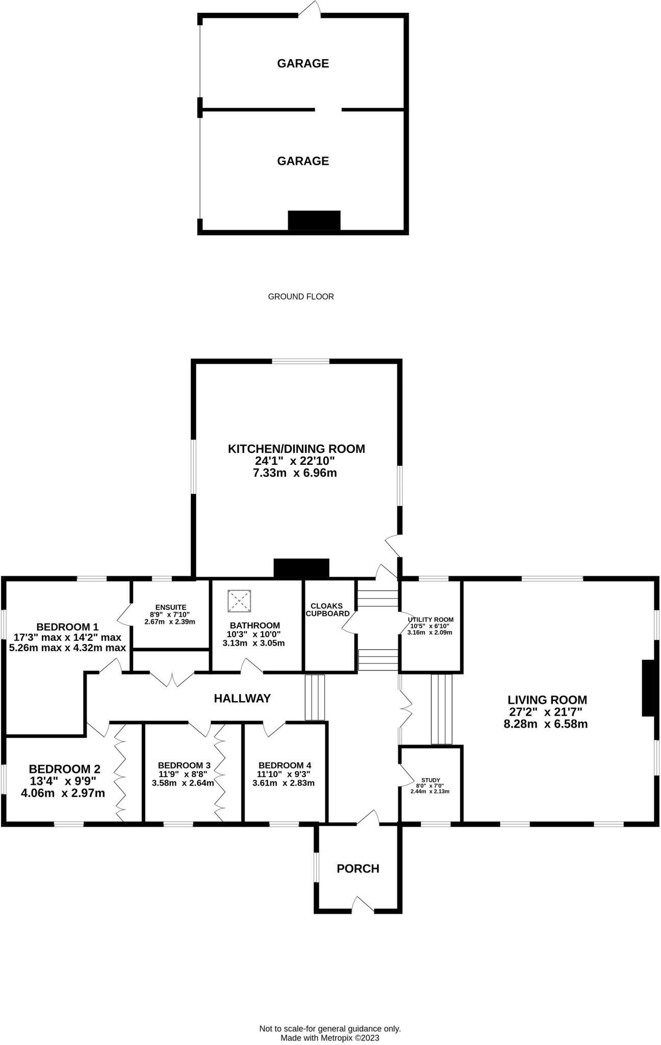
A rare Grade II listed bungalow offering generous single-storey living and high-quality finishes throughout. Recently renovated to an exacting standard, the house blends period character with contemporary fixtures, large rooms and a flexible ten-room layout suited to family life.
The triple-aspect 27ft living room, substantial kitchen/dining island with polished marble surfaces and integrated appliances, plus a separate study and utility, deliver comfortable everyday living and home-working space. Four bedrooms include fitted wardrobes and a principal en suite; a family bathroom features a freestanding bath and bidet.
Outside, mature, private gardens front and rear, a pond and a gravel driveway lead to two single garages with electric doors — strong appeal for buyers seeking space and parking. The property is chain-free and well placed for road links and local schools, making it practical for commuting families.
Important considerations: the house is Grade II listed (dating from 1850), so any alterations will be subject to listed-building controls and potential additional costs. Council tax is noted as quite expensive. Viewing is recommended to appreciate scale and finish.
3 bedroom bungalow for sale in Ryehill View, East Rainton, Houghton le Spring, Tyne and Wear, DH5 — £410,000 • 3 bed • 3 bath • 1263 ft²
5 bedroom semi-detached house for sale in Fyndoune, Hartside, Durham, DH1 — £725,000 • 5 bed • 3 bath • 3089 ft²
3 bedroom detached bungalow for sale in Talys, Smallhope Drive, Lanchester, Durham, DH7 — £600,000 • 3 bed • 3 bath • 2032 ft²
1 bedroom detached bungalow for sale in Rothley Terrace, Consett, DH8 — £165,000 • 1 bed • 1 bath • 605 ft²
2 bedroom terraced house for sale in Church Row, West Rainton, Houghton le Spring, Tyne And Wear, DH4 — £165,000 • 2 bed • 1 bath • 905 ft²
4 bedroom bungalow for sale in Highbury, North View Terrace, Houghton-Le-Spring, DH4 — £500,000 • 4 bed • 2 bath • 2770 ft²






























































































































