Turn-key five-bedroom retreat with private garden and multiple parking spaces.
- Five bedrooms across three floors, including master en-suite and dressing area
- Large open-plan kitchen/diner/family room and separate lounge
- Private rear garden not directly overlooked
- Off-street parking for multiple vehicles
- Built c.2007–2011 with double glazing and gas central heating
- Turn-key presentation, minimal immediate works expected
- Leasehold tenure — check length and service charges
- Council Tax band E (above average) and EPC pending
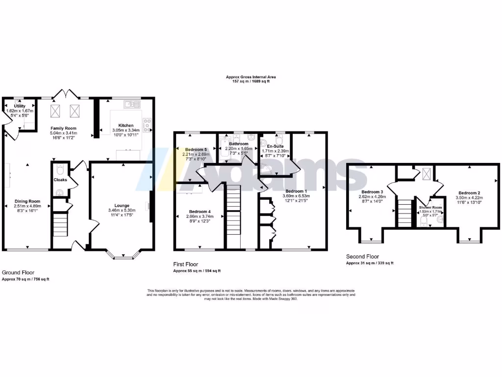
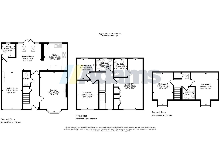
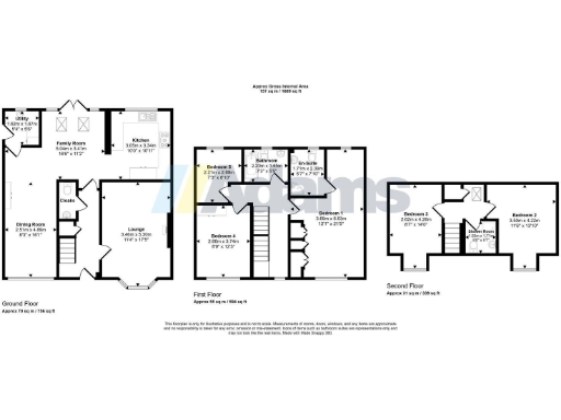
Set across three floors, this five-bedroom detached house offers roomy, move-in-ready accommodation for growing families. The master suite includes an en-suite and a dressing area, and a generous open-plan kitchen/diner/family room anchors the ground floor for everyday living and entertaining.
The property is presented in excellent condition, built c.2007–2011 with double glazing and gas central heating. The rear garden is private and not directly overlooked, and there is off-street parking for several vehicles. Broadband and mobile signal are strong and the location sits within catchments for several well-rated primary and secondary schools.
Practical points: the home is leasehold, council tax sits in band E (above average) and an EPC rating is pending. There are no known flood risks. Overall this is a turn-key family home in a comfortable suburban setting, but buyers should confirm lease terms and running costs before proceeding.
4 bedroom detached house for sale in Finsbury Park, Farnworth, Widnes, WA8 — £435,000 • 4 bed • 3 bath • 1528 ft²
4 bedroom detached house for sale in Kemberton Drive, Farnworth, Widnes, WA8 — £450,000 • 4 bed • 2 bath • 1560 ft²
4 bedroom detached house for sale in Swynnerton Way, Farnworth, Widnes, WA8 — £500,000 • 4 bed • 3 bath • 2132 ft²
4 bedroom detached house for sale in Chadwick Lane, Farnworth, Widnes, WA8 — £435,000 • 4 bed • 3 bath • 1734 ft²
3 bedroom detached house for sale in Ingham Road, Farnworth, Widnes, WA8 — £525,000 • 3 bed • 2 bath • 610 ft²
3 bedroom detached house for sale in Woodford Drive, Widnes, WA8 — £330,000 • 3 bed • 2 bath • 1133 ft²


























































































































































