Spacious family home with large garden and strong local schools nearby.
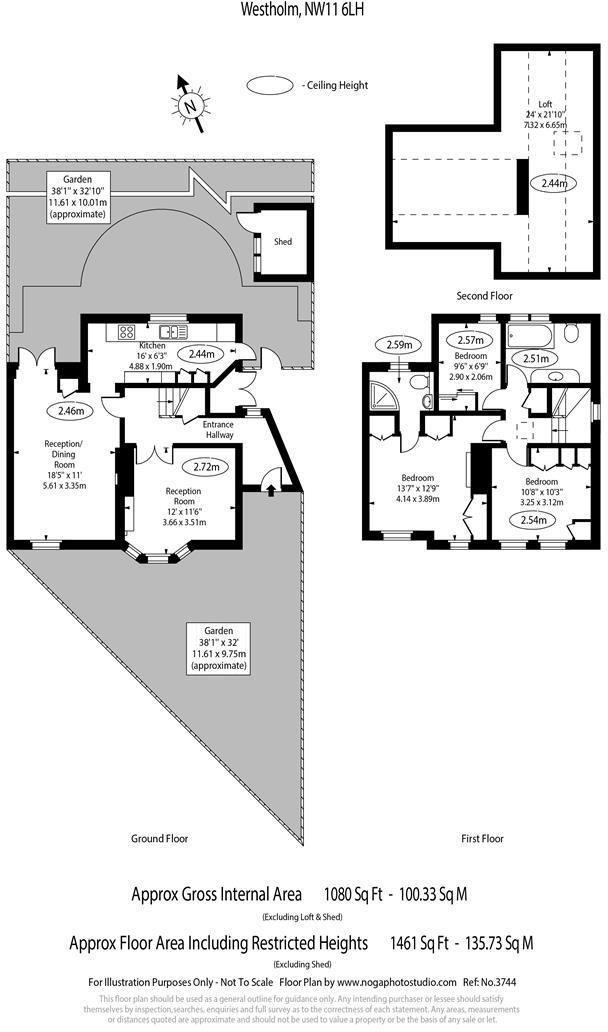
- 3 bedrooms and 2 bathrooms, approx. 1,080–1,088 sq ft
- Large private rear garden ~39ft with side access
- Principal bedroom with en‑suite and fitted wardrobes
- Period Tudor‑Revival features and character throughout
- Large loft storage; scope for conversion subject to planning
- Solid brick walls likely without cavity insulation (energy upgrade needed)
- Freehold; very affluent area, low local crime
- Council tax described as expensive; expect higher running costs
A charming 3-bedroom, 2-bathroom semi-detached cottage in Hampstead Garden Suburb, arranged across generous, bright living spaces and offering 1,080–1,088 sq ft of accommodation. The house retains period Tudor-Revival character, a fitted kitchen, principal bedroom with en-suite and fitted wardrobes, plus large loft storage — perfect for family living and weekend projects.
The gardens are a major asset: a private front approach and an approx. 39' landscaped rear garden provide a peaceful outdoor room, side access and scope for play, entertaining or a future extension (subject to planning). The property sits in a quiet cul-de-sac close to The Market Place, Hampstead Heath and highly regarded local primary schools, making it especially suitable for families seeking space and strong schooling options.
There is clear potential to modernise and add value, but buyers should factor in refurbishment work to bring services and insulation up to contemporary standards. The house appears to have solid brick walls (likely no cavity insulation), glazing type is not defined and the overall finish will benefit from updating. Council tax is noted as expensive, and while the area is very affluent with low crime, running costs and remedial improvements should be budgeted for.
Available as a freehold with typical interwar period charm, this home suits families who value location, outdoor space and character, and who are willing to invest modestly to modernise mechanicals and energy performance. A full inspection and floorplan are recommended to confirm potential for extension or conversion of loft space and to assess condition in detail.
3 bedroom terraced house for sale in Willifield Way, Hampstead Garden Suburb, NW11 — £1,100,000 • 3 bed • 2 bath • 1447 ft²
3 bedroom semi-detached house for sale in Brookland Close, Hampstead Garden Suburb, NW11 — £1,225,000 • 3 bed • 2 bath • 1224 ft²
3 bedroom semi-detached house for sale in Erskine Hill, Hampstead Garden Suburb, NW11 — £950,000 • 3 bed • 1 bath • 921 ft²
3 bedroom semi-detached house for sale in Brookland Rise, LONDON, NW11 — £900,000 • 3 bed • 1 bath • 1015 ft²
4 bedroom semi-detached house for sale in Woodside, Hampstead Garden Suburb, NW11 — £1,675,000 • 4 bed • 1 bath • 1928 ft²
6 bedroom semi-detached house for sale in Heath Close, London, NW11 — £3,250,000 • 6 bed • 4 bath • 2915 ft²


























































