**Standout Features:**
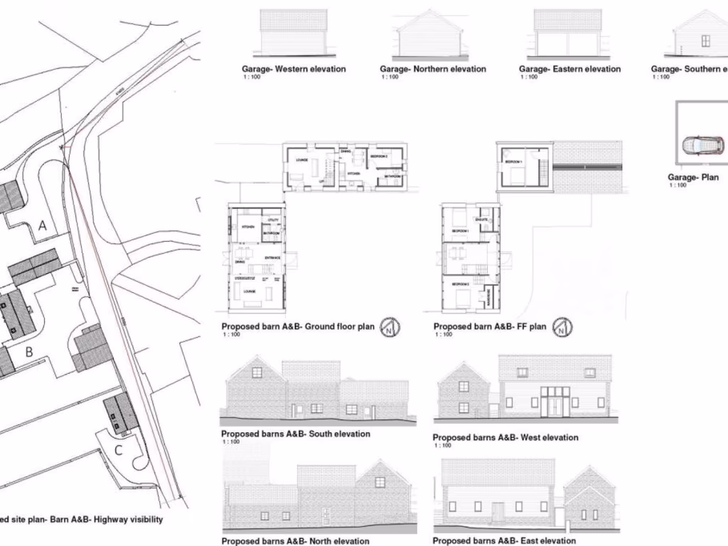
- Full planning permission for the conversion of three detached barns
- Approximately 1.3 acres of private, well-maintained grounds
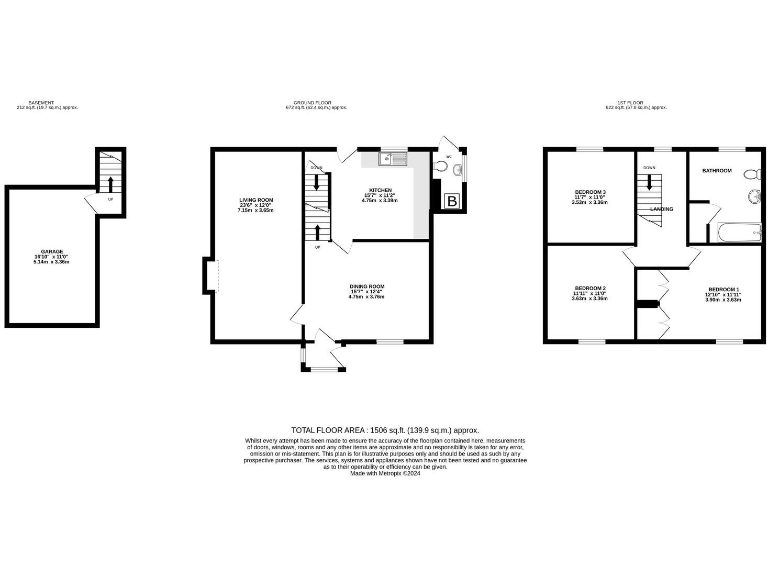
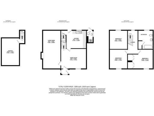
- Charming three-bedroom detached cottage with extensive interior potential
- Scenic rural location in Little Cowarne, Herefordshire
- Ample off-street parking and electric vehicle charging points
- Low crime rate and peaceful community setting
**Summary:**
Introducing a rare opportunity at Upper House Barns—a unique property set in approximately 1.3 acres of picturesque Herefordshire countryside, perfect for those seeking a tranquil lifestyle or a solid investment. This offering includes a traditional three-bedroom detached cottage featuring period charm alongside contemporary potential, providing ample room for family life and future renovations. The expansive grounds are surrounded by mature trees and fertile land, making it an ideal setting for gardening, outdoor activities, or simply relishing the natural beauty of rural living.
Included are three historic barns with full planning permission for residential conversion (Ref P224305/F), allowing you to craft additional living spaces or lucrative rental units. With easy access to local amenities and a serene backdrop, this property offers a rare blend of peace and potential. Consider the flexibility for expansion or refurbishment that this site provides, making it a must-see for developers or families dreaming of country living. Don’t miss your chance to secure this exclusive piece of countryside; it won't last long!
2 bedroom barn conversion for sale in Much Cowarne, Bromyard, HR7 — £515,000 • 2 bed • 1 bath • 1830 ft²
3 bedroom semi-detached house for sale in The Granary, Acton Beauchamp, WR6 — £699,000 • 3 bed • 3 bath • 1997 ft²
5 bedroom barn conversion for sale in Burghill, Hereford, HR4 — £850,000 • 5 bed • 4 bath • 4000 ft²
5 bedroom barn conversion for sale in Stunning 5 Bed Barn Conversion – Ocle Pychard, Herefordshire, HR1 — £580,000 • 5 bed • 3 bath • 3264 ft²
Land for sale in Barn Adjacent To New Tynnings, Acton Beauchamp, Worcester, Herefordshire, WR6 — £300,000 • 1 bed • 1 bath
3 bedroom cottage for sale in Aylton, Ledbury, HR8 — £510,000 • 3 bed • 2 bath • 668 ft²






































































































































































