Spacious period home with B&B potential and countryside views.
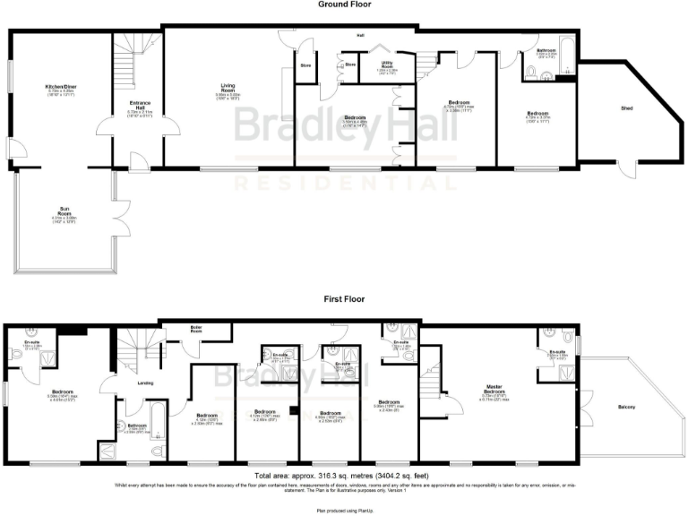
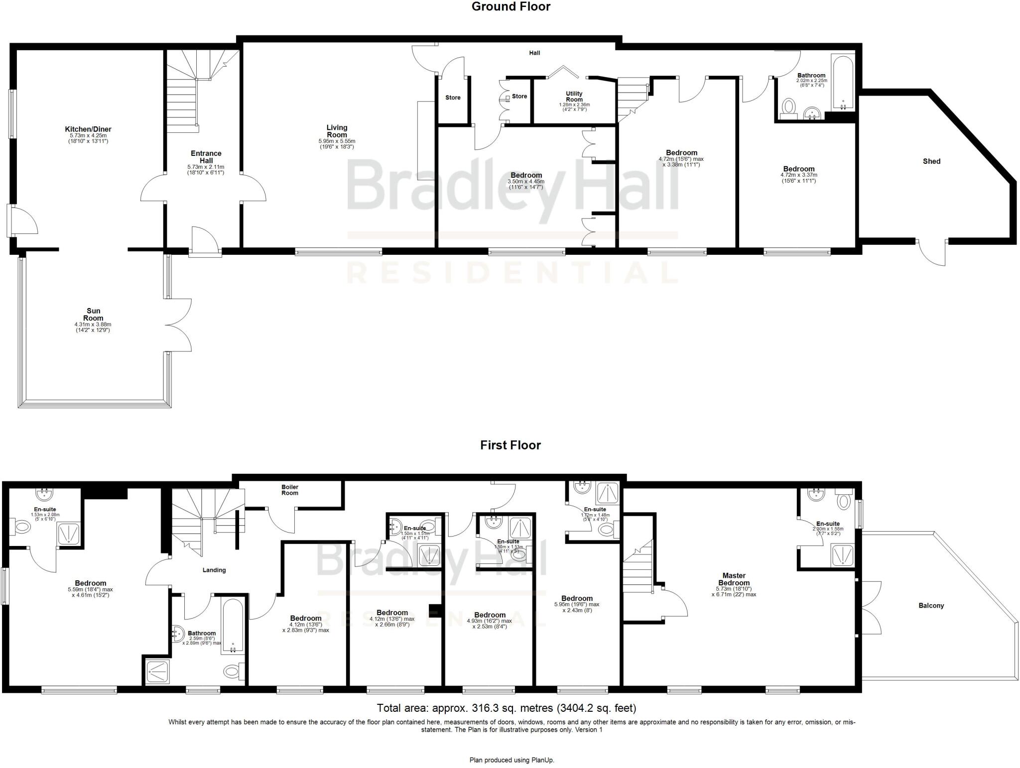
Nine bedrooms and seven bathrooms across approximately 3,404 sq ft
Stone Cottage is a substantial nine-bedroom period home occupying a decent plot on the edge of Ponteland’s prosperous countryside. Currently run as a long-established bed and breakfast, the property offers flexible use — continue commercial operation or convert back to a single private residence, subject to any required consents. The house extends to about 3,404 sq ft with seven bathrooms, several reception rooms and a sunroom overlooking mature gardens.
The house retains strong traditional character: sandstone exterior, large arched windows, pitched roof and a barn-conversion feel. Practical features include a private gated driveway with off-street parking, mains gas central heating (boiler and radiators) and solar panels. The master suite is accessed via its own staircase and includes a balcony with open views across neighbouring fields.
Buyers should note some material points: glazing was installed before 2002 and the original stone walls are assumed uninsulated, so significant energy-efficiency improvements are likely required. Broadband speeds are very slow in this location. The property is offered with vacant possession after more than three decades of single ownership and is sold freehold with an EPC rating of C. This is a strong opportunity for purchasers seeking a spacious family home with business potential or an investor wanting to continue a proven B&B operation.
Land for sale in Stone Cottage, Ponteland, NE20 — £900,000 • 1 bed • 1 bath
5 bedroom semi-detached house for sale in Ponteland, Newcastle upon Tyne, Northumberland, NE20 — £650,000 • 5 bed • 3 bath • 2161 ft²
3 bedroom terraced house for sale in Whorlton Hall Cottages, Newcastle Upon Tyne, NE5 — £289,950 • 3 bed • 1 bath • 990 ft²
4 bedroom detached house for sale in Kirkley, Newcastle upon Tyne, Northumberland, NE20 — £650,000 • 4 bed • 1 bath
4 bedroom detached house for sale in Eachwick, Near Ponteland, Newcastle Upon Tyne, NE18 — £695,000 • 4 bed • 2 bath • 2756 ft²
5 bedroom detached house for sale in The Avenue, Ponteland, NE20 — £950,000 • 5 bed • 4 bath • 4000 ft²














































































