**Standout Features:**
- Chain-free over 55's maisonette in Bishop's Stortford
- Convenient walking distance to town amenities and mainline station
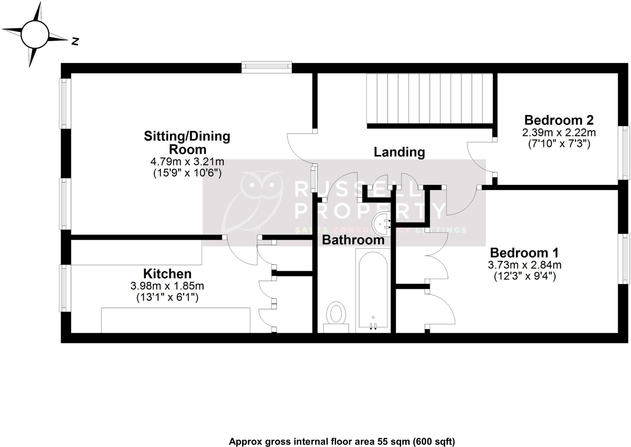
- Spacious dual-aspect living/dining area with natural light
- Two bedrooms, including a principal room with built-in wardrobes
- Off-street resident parking available
- Leasehold with 88 years remaining, low ground rent of £10/year
**Potential Downsides:**
- Maintenance charge of approximately £1700 per annum
- Small overall size (600 sq ft) may not suit everyone
- Some areas may appear dated, requiring personal touch for a modern feel
Discover the perfect opportunity for comfortable and convenient retirement living with this charming maisonette tailored for those aged over 55. Located just a short stroll from the vibrant heart of Bishop's Stortford, you will have easy access to a host of shops, leisure facilities, and the mainline station offering direct routes to Cambridge and London. With a practical layout comprising two cozy bedrooms, a functional kitchen, and a light-filled dual-aspect sitting/dining room, this residence invites you to add your personal touch.
Benefit from resident parking and delight in the affordable council tax and reasonable maintenance charges that create a favorable living environment. Whether you envision a serene lifestyle surrounded by amenities or a community-focused retreat with fellow retirees, this property has the potential to make your next chapter fulfilling.
Don’t miss out - with chain-free flexibility and an inviting atmosphere, this maisonette won’t be available for long!
2 bedroom apartment for sale in Windhill, Bishop's Stortford, Hertfordshire, CM23 — £180,000 • 2 bed • 1 bath • 550 ft²
1 bedroom retirement property for sale in Hadham Road, Bishop's Stortford, Hertfordshire, CM23 — £150,000 • 1 bed • 1 bath • 428 ft²
1 bedroom retirement property for sale in Hockerill Street, Bishop's Stortford, Hertfordshire, CM23 — £110,000 • 1 bed • 1 bath • 379 ft²
2 bedroom maisonette for sale in Bryan Road, Bishop's Stortford, Hertfordshire, CM23 — £240,000 • 2 bed • 1 bath • 831 ft²
2 bedroom apartment for sale in Priory Court, Apton Road, Bishop's Stortford, Hertfordshire, CM23 — £280,000 • 2 bed • 1 bath • 625 ft²
2 bedroom apartment for sale in Windhill, Bishop's Stortford, CM23 — £219,995 • 2 bed • 1 bath • 611 ft²


































































