**Standout Features:**
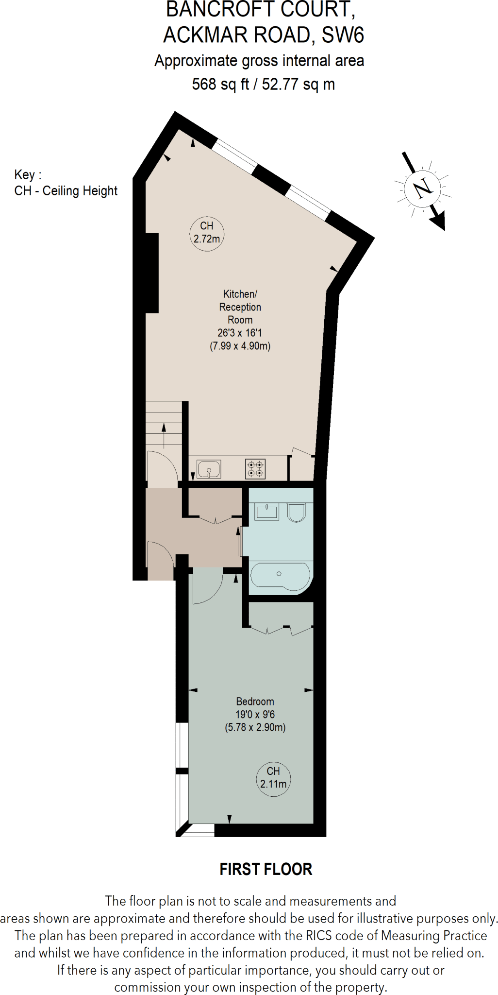
- **Size:** 568 sq. ft. one-bedroom flat
- **Location:** Heart of Parsons Green, within easy access to parks, shops, and transport links
- **Light & Spacious:** Dual-aspect sash windows with ample natural light
- **Condition:** Contemporary interior, well-maintained
- **Leasehold:** Chain-free property
**Potential Downsides:**
- **Age of Construction:** Built before 1900, some structural updates may be needed
- **Crime Rate:** Above average in the area
- **Insulation:** Solid brick walls without specified insulation
Discover urban living at its finest in this bright and airy one-bedroom flat located in the vibrant Parsons Green area. Boasting 568 sq. ft. of well-arranged space, this first-floor apartment features a generous open-plan kitchen and reception room, enhanced by large sash windows that flood the interiors with light. The contemporary kitchen showcases sleek white cabinetry and modern finishes, while the rear-facing bedroom offers built-in storage for added convenience.
Perfectly situated, the property is a stone's throw from the lush Hurlingham Park and the scenic River Thames, providing a serene retreat amidst the bustling city. With a variety of shops, cafes, and eateries on New King’s Road and Fulham Road nearby, this flat is a winner for those who enjoy a cosmopolitan lifestyle. Transport links including Putney Bridge and Parsons Green stations grant swift access to Central and South London.
The flat's leasehold status and chain-free availability present a fantastic opportunity for first-time buyers or investors looking for a rental potential in an affluent area. While the flat is in good condition, potential buyers should consider the property's age, which may require future upgrades. Don't miss your chance to own this charming piece of Parsons Green—properties like these don't stay on the market long!
1 bedroom apartment for sale in Whittingstall Road, Fulham, London, SW6 — £430,000 • 1 bed • 1 bath • 406 ft²
1 bedroom flat for sale in Fulham Road, Fulham, London, SW6 — £565,000 • 1 bed • 1 bath • 593 ft²
1 bedroom flat for sale in Parsons Green, London, SW6 — £600,000 • 1 bed • 1 bath • 433 ft²
1 bedroom apartment for sale in St. Maur Road, Fulham, London, SW6 — £525,000 • 1 bed • 1 bath • 525 ft²
1 bedroom flat for sale in Fulham Road, Parsons Green, SW6 — £475,000 • 1 bed • 1 bath • 535 ft²
2 bedroom apartment for sale in Parsons Green Lane, Fulham, SW6 — £750,000 • 2 bed • 2 bath • 950 ft²


































