**Standout Features:**
- Recently renovated: new kitchen (2022) and bathroom (2023)
- New gas boiler (2020)
- Off-road parking for two vehicles
- Low maintenance rear garden with patio, raised beds, and storage shed
- Ideal location near schools and local amenities
- Stunning views of the South Downs
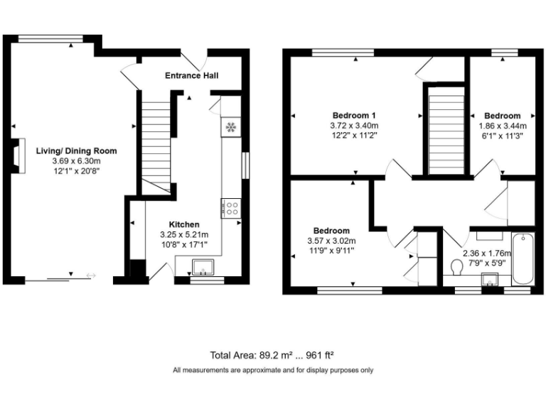
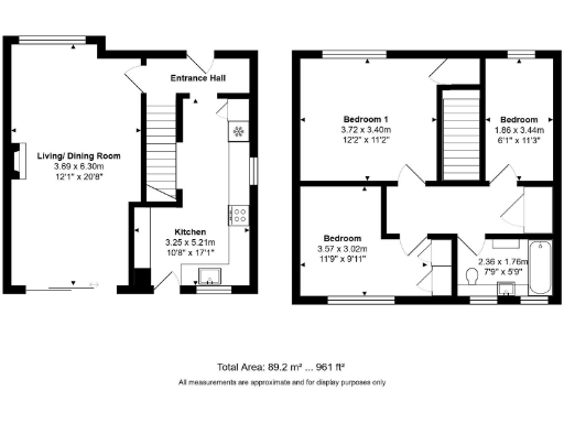
Located in the charming village of Upper Beeding, this inviting three-bedroom semi-detached home is perfect for families seeking comfort and convenience. Boasting recent renovations, the modern kitchen and stylish bathroom add contemporary flair to the mid-20th-century design. Enjoy the spacious living and dining areas that flow seamlessly onto a low-maintenance patio garden, ideal for entertaining or unwinding.
With schools just a short walk away, including the highly-rated Upper Beeding Primary School, this home is tailor-made for families. The excellent transport links ensure easy access to nearby Steyning and the vibrant attractions of Brighton, just 12 miles away. Additionally, with the vendors already suited, this property won’t last long on the market.
While the home exhibits a cozy atmosphere and has been well-kept, it is located in a small town with a self-sufficient retirement vibe, making it a fantastic investment in a peaceful community. Don’t miss the chance to make this delightful property your own—schedule a viewing today!











































































