Spacious Victorian family house with modern extension and river views.
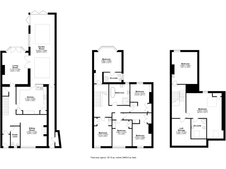
Seven bedrooms across three floors, including two en-suites
A grand seven-bedroom Victorian terraced home arranged over three floors, offering 3,463 sq ft of generous living space and striking river views. The property combines original period details — sash and bay windows, high ceilings and fireplaces — with a contemporary garden-room extension featuring a lantern roof, underfloor heating and full-height bi-fold doors that open onto a raised terrace and landscaped gardens. Two bedrooms include en-suites and there is a main family bathroom plus a downstairs cloakroom to suit busy family life.
This house will appeal to families seeking spacious, flexible accommodation close to Morpeth town centre and highly regarded schools, including King Edward VI (Outstanding). The layout supports multi-generational living or home working, with three reception rooms, a large kitchen and abundant built-in storage across the upper floors. Fast broadband and excellent mobile signal help make remote working straightforward, while the riverside outlook and mature gardens provide a pleasant outdoor setting.
Buyers should note a few practical considerations: the property is a terraced period house and will carry the typical maintenance and upkeep associated with Victorian fabric. The area records a very high crime rate, which prospective purchasers should investigate and factor into security needs and insurance costs. Two parking permits are available rather than private off-street parking, and council tax details are not provided. Flood risk is reported as none.
Overall this is a characterful, spacious family home where the contemporary extension creates a light-filled, social hub and the upper floors deliver significant bedroom capacity. It suits a growing family or purchasers wanting flexible space with strong local amenities and good transport links to Newcastle and further afield.
3 bedroom terraced house for sale in Northbourne Avenue, Morpeth, NE61 — £330,000 • 3 bed • 2 bath
4 bedroom terraced house for sale in The Grove, Kings Avenue, Morpeth, Northumberland, NE61 — £650,000 • 4 bed • 2 bath • 2152 ft²
3 bedroom terraced house for sale in Tenter Terrace, Morpeth, Northumberland, NE61 1TN, NE61 — £300,000 • 3 bed • 1 bath
3 bedroom house for sale in Newgate Street, Morpeth, NE61 — £260,000 • 3 bed • 1 bath
4 bedroom terraced house for sale in Front Street, Corbridge, NE45 — £900,000 • 4 bed • 2 bath • 2343 ft²
3 bedroom end of terrace house for sale in Wansbeck Street, Morpeth, NE61 — £525,000 • 3 bed • 2 bath • 2073 ft²






































































































































