**Standout Features:**
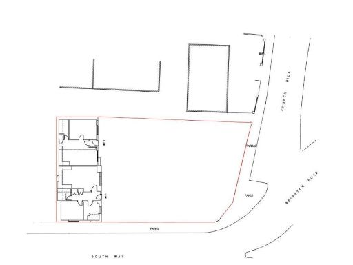
- Freehold development site in central Newhaven.
- Approved planning application for 13 flats and 1 commercial unit (LW/20/0360).
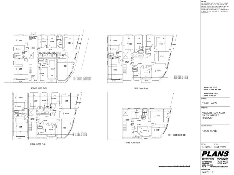
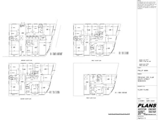
- Modern design with ample natural light and large windows.
- Excellent urban location with immediate access to amenities.
- Potential for diverse layouts, including two-bedroom and one-bedroom options.
- Step into the burgeoning market with increasing demand for residential spaces.
**Concise Summary:**
Discover a prime development opportunity on South Way, Newhaven, with a cleared site ready for a striking four-storey residential block boasting 13 flats and a commercial unit. This modern construction is designed for light and space, featuring large windows that promise bright interiors. The well-thought-out layout includes multiple units of varying sizes, catering to diverse market needs.
Located at the bustling A26/A259 junction, you're just steps away from amenities, including stores, healthcare, and dining options, providing convenience for future residents. While the area has average crime rates and general deprivation, it is vibrant and evolving, making it ideal for investors looking for potential rental returns. The impending planning approval opens the door to capitalize on Newhaven’s growing demand for urban housing. Don’t miss out on this exceptional investment opportunity!
Plot for sale in South Coast Road, Telscombe Cliffs, BN10 — £1,150,000 • 1 bed • 1 bath • 6458 ft²
Residential development for sale in 10 Claremont Road, Seaford, East Sussex, BN25 2AY, BN25 — £900,000 • 1 bed • 1 bath • 13068 ft²
Plot for sale in Sutton Drove, Seaford, BN25 — £595,000 • 1 bed • 1 bath
Plot for sale in The Highway, Newhaven, BN9 — £20,000 • 1 bed • 1 bath
Land for sale in Tideswell Rd, Eastbourne, BN21 — £350,000 • 6 bed • 6 bath • 495 ft²
House for sale in East Sussex, BN27 — £2,500,000 • 1 bed • 1 bath






















