Two double bedrooms and large inter-connecting double reception
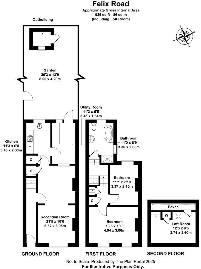
A substantial two-bedroom Victorian terrace arranged over three floors, this freehold home offers about 926 sq ft of flexible living space ideal for commuter families. The property has two double bedrooms, a large inter-connecting double reception and a sizable family bathroom with both a bath and separate shower. A separate kitchen and adjoining utility open onto a large private garden, making the house practical for everyday family life and entertaining.
Positioned a short walk from West Ealing (Elizabeth Line) and local amenities including a Waitrose, cafés and a Saturday farmer’s market, the location suits buyers who need fast links into central London and Canary Wharf. The house is presented in excellent condition throughout and is offered chain free, so it should suit purchasers wanting a straightforward move-in.
Buyers should note the local context: the area records higher crime levels and is described as very deprived, which may concern some purchasers. The building is a period property (c.1900–1929) with assumed solid brick walls and no intrinsic wall insulation; further thermal upgrades may be necessary if reduced energy bills or retrofit are priorities. The plot and front garden are modest in size.
Overall this is a roomy, well-presented Victorian terrace with clear commuter appeal, strong local schools nearby and a private garden — a practical family home with some typical period-property retrofit considerations.
4 bedroom house for sale in Endsleigh Road, Ealing, W13 — £925,000 • 4 bed • 2 bath • 1400 ft²
3 bedroom house for sale in Convent Gardens, Ealing, W5 — £825,000 • 3 bed • 2 bath • 1010 ft²
2 bedroom terraced house for sale in Alexandria Road, Ealing, London, W13 0NR, W13 — £625,000 • 2 bed • 1 bath • 979 ft²
3 bedroom house for sale in Drayton Avenue, Ealing, W13 — £995,000 • 3 bed • 2 bath • 1361 ft²
4 bedroom house for sale in Manor Road, Ealing, W13 — £799,950 • 4 bed • 2 bath • 1254 ft²
2 bedroom terraced house for sale in Felix Road, London, W13 — £599,000 • 2 bed • 1 bath • 710 ft²


































































