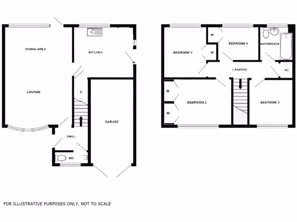
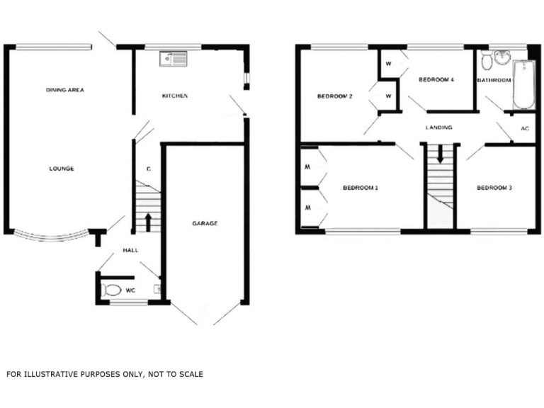
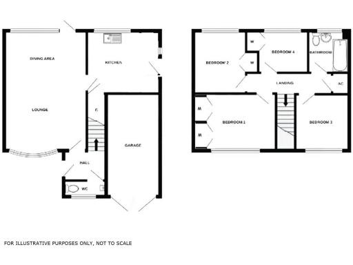
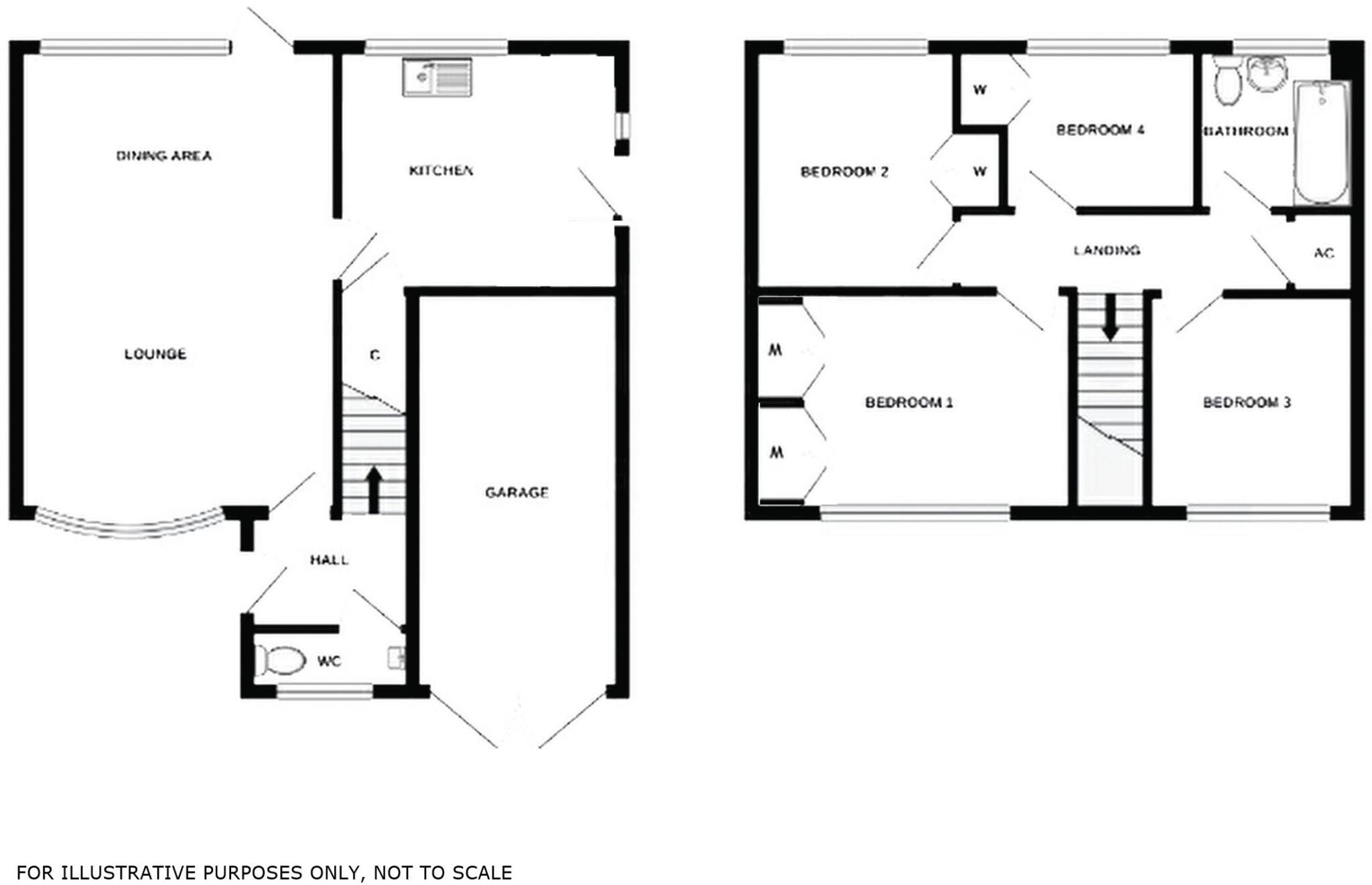
No onward chain four-bedroom family home with garage and two-tier garden in Burntwood.
- No onward chain, freehold detached house
- Spacious lounge-diner with French doors to garden
- Breakfast kitchen with space for table, utility provisions
- Integral garage with high ceiling; driveway for two cars
- Two-tier private rear garden with patio, lawn and sheds
- Single family bathroom only; one WC downstairs
- Modest total area (~915 sq ft) for four bedrooms
- Some dated finishes; modernisation likely to add value
A four-bedroom detached family home offered with NO ONWARD CHAIN in a sought-after Burntwood neighbourhood. The property benefits from a large lounge-diner with French doors, a practical breakfast kitchen and an integral garage with high ceiling and driveway parking for two cars. Double glazing and mains gas central heating are already installed.
The house sits on a decent two-tier rear garden with patio areas, lawn and garden sheds — an easy-to-manage outdoor space for children or entertaining. Nearby facilities include good primary and secondary schools, a doctors’ surgery, a superstore and convenient commuter links via the A5, A38 and M6 Toll.
Note the property’s modest total floor area (around 915 sq ft) for a four-bedroom house and a single family bathroom. Interiors show some dated fittings and decor which will benefit from updating — an opportunity to add value through modernisation. Overall this is a practical, well-located family starter or downsizer on a freehold title in a very low-crime, affluent area.
4 bedroom detached house for sale in Faunch Close, Burntwood, WS7 — £390,000 • 4 bed • 2 bath • 1228 ft²
4 bedroom detached house for sale in Telford Close, Burntwood, WS7 — £425,000 • 4 bed • 2 bath • 1215 ft²
4 bedroom semi-detached house for sale in Larkspur Avenue, Burntwood, WS7 — £325,000 • 4 bed • 2 bath • 1368 ft²
4 bedroom detached house for sale in Hanney Hay Road, Burntwood, WS7 — £475,000 • 4 bed • 2 bath • 1151 ft²
4 bedroom detached house for sale in Norton Lane, Burntwood, WS7 — £400,000 • 4 bed • 2 bath • 1103 ft²
4 bedroom detached house for sale in Bleak House Drive, Burntwood, WS7 — £450,000 • 4 bed • 2 bath • 1249 ft²


















































































