Three-bedroom semi with south garden, garage and scope for modernisation..
Southerly-facing rear garden with patio and conservatory
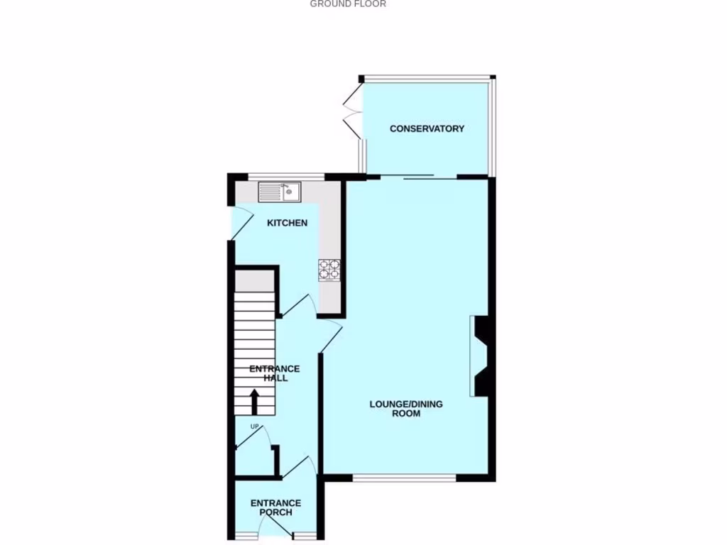
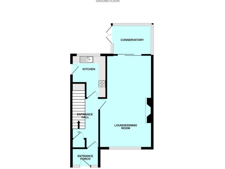
This semi‑detached 1960s/70s family home sits on Gilwell Avenue, Plymstock, with a southerly-facing rear garden that maximises afternoon and evening sun. The layout includes a generous lounge/diner, conservatory, fitted kitchen, three bedrooms and a shower room — practical accommodation for families or buy-to-let purchasers. Driveway parking and a single garage add useful storage and off-road convenience.
The house is double‑glazed and warmed by a mains gas boiler with radiators; the Worcester boiler is housed in an over‑stair cupboard. Room proportions are typical for the era and the property offers straightforward potential for cosmetic modernisation to update kitchen, bathroom and external finishes. The rear garden and conservatory present immediate outdoor enjoyment and scope for landscaping or extension (subject to permissions).
Notable drawbacks are its dated exterior and interiors that will benefit from modernising; the property was built in the late 1960s–1970s and cavity walls are assumed uninsulated, which may affect energy efficiency and running costs until upgraded. There is a single shower room only, which may be limiting for some families. Overall the house sits in a very low crime, very affluent neighbourhood with fast broadband and excellent mobile signal, near well‑rated schools, making it a practical family purchase or a renovation opportunity for investors seeking uplift.
Practical details: freehold tenure, council tax band C, no flood risk and all mains services connected. Buyers should view to assess scope for reconfiguration or improvements to heating and insulation to suit longer‑term comfort and running costs.
3 bedroom semi-detached house for sale in Dunstone View, Plymstock, PL9 8TW, PL9 — £325,000 • 3 bed • 1 bath • 669 ft²
2 bedroom semi-detached house for sale in Dolphin Court Road, Plymouth, PL9 — £230,000 • 2 bed • 1 bath • 781 ft²
3 bedroom semi-detached house for sale in Plymstock, Plymouth, PL9 — £385,000 • 3 bed • 2 bath • 937 ft²
3 bedroom semi-detached house for sale in Randwick Park Road, Plymouth, PL9 — £290,000 • 3 bed • 1 bath • 819 ft²
3 bedroom semi-detached house for sale in Plymstock, Plymouth, PL9 — £279,950 • 3 bed • 1 bath • 1303 ft²
3 bedroom semi-detached house for sale in Plymstock, Plymouth, PL9 — £425,000 • 3 bed • 2 bath • 1387 ft²






























































