Comfortable three-bedroom home with conservatory, garage and driveway in sought-after Gonerby Hill Foot.
Three-bedroom detached on a quiet cul-de-sac
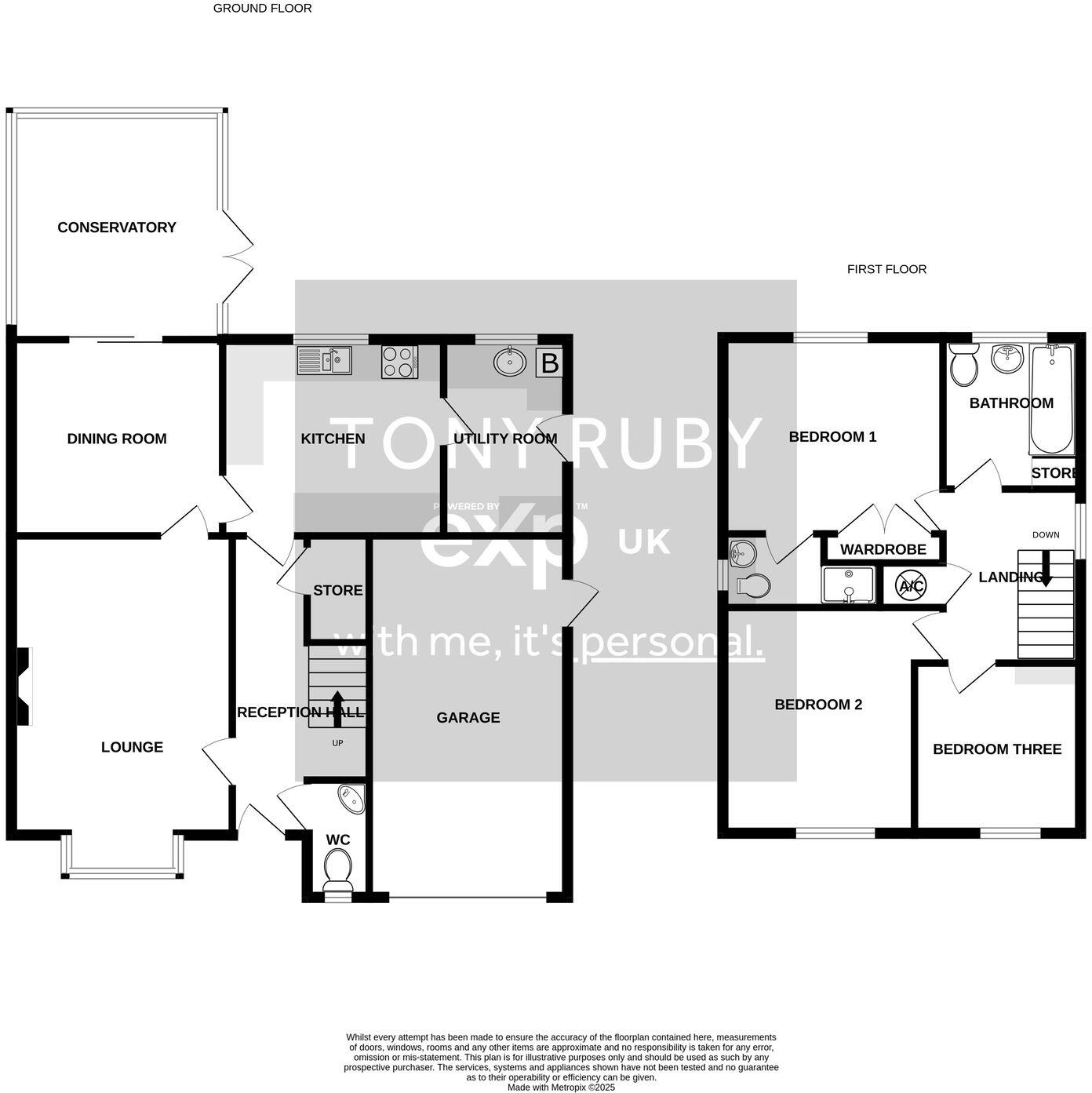
Set back in a quiet cul-de-sac on Gonerby Hill Foot, this three-bedroom detached home offers comfortable, well-planned living across about 925 sq ft. The ground floor provides a lounge with box bay, separate dining room, kitchen, utility and a bright glass-roof conservatory that opens onto an enclosed private garden. A garage and wide block‑paved driveway provide practical parking for several vehicles.
Upstairs the main bedroom includes a built-in wardrobe and en suite, supported by two further bedrooms and a family bathroom. The house benefits from gas central heating via a modern boiler and UPVC double glazing. EPC C and council tax band C make it economical to run for a property of this type.
The conservatory was added in 2010 with upgraded foundations supervised by a chartered engineer. A 25 June 2025 structural inspection recorded minor, long‑standing movements and recommended small remedial works, which have been completed. Prospective buyers should review the inspection report for reassurance. Double glazing dates from before 2002, which may be considered for future upgrading.
This is a freehold family home in a very low‑crime, comfortable suburban area with fast broadband and excellent mobile signal. Local primary and secondary schools rated Good to Outstanding are within easy reach, making the property suitable for families seeking convenience and a settled neighbourhood.
3 bedroom detached house for sale in Applewood Drive, Gonerby Hill Foot, Grantham, NG31 — £300,000 • 3 bed • 1 bath • 1174 ft²
3 bedroom detached house for sale in Malvern Drive, Gonerby Hill Foot, Grantham, NG31 — £260,000 • 3 bed • 2 bath • 958 ft²
4 bedroom detached house for sale in Helmsley Road in Grantham, NG31 — £290,000 • 4 bed • 2 bath • 1032 ft²
3 bedroom semi-detached house for sale in Cliffe Road, Gonerby Hill Foot, Grantham, NG31 — £265,000 • 3 bed • 1 bath
3 bedroom semi-detached house for sale in Cheviot Close, Gonerby Hill Foot, Grantham, NG31 — £210,000 • 3 bed • 1 bath • 643 ft²
3 bedroom semi-detached house for sale in Knaresborough Drive in Grantham, NG31 — £260,000 • 3 bed • 2 bath • 1183 ft²














































































































