Low-maintenance apartment near town centre, ideal for first-time buyers or investors..
- No upward chain, ready for quick completion
- Gated entrance with secure intercom system
- One allocated off-street parking space plus visitor bays
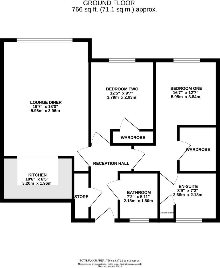
- Main bedroom includes walk-in wardrobe and en-suite
- Long lease: approximately 101 years remaining
- Conflicting documents on whether ground or third floor
- No private garden; modest communal frontage only
- Local area shows higher crime and area deprivation
This two-bedroom apartment is being sold with no upward chain and offers practical living in a modern brick-and-render block close to Redditch town centre. The layout includes an open-plan lounge, fitted kitchen with built-in appliances, an ensuite to the main bedroom and an additional family bathroom, all within a compact 766 sq ft footprint. Security features include a gated entrance, secure intercom and one allocated off-street parking space.
The apartment suits a first-time buyer or buy-to-let investor seeking straightforward accommodation with immediate occupation potential. The bright living room and built-in bedroom wardrobes reduce immediate furnishing costs, while the long lease (approximately 101 years) removes short-lease urgency. Broadband speeds and mobile signal are strong in this area, useful for working from home or tenants.
There are a few practical considerations to note. Local crime levels and wider area deprivation are above average for the town, which may affect resale or rental demand in certain market segments. Documents provided contain conflicting information about the flat’s floor level; prospective buyers should confirm whether the property is ground-floor or on the third floor. The communal grounds are modest with limited external amenity and no private garden, and the block sits directly onto the street.
Overall this is a mid-sized, contemporary apartment offering a low-maintenance option near local shops, transport and schools. It presents a sensible opportunity for first-time purchase or as part of a small rental portfolio, provided buyers factor the local area profile into their decision and verify the floor level and any block service charges before committing.
2 bedroom apartment for sale in Dixon Close, Enfield, Redditch, Worcestershire, B97 — £130,000 • 2 bed • 1 bath • 574 ft²
2 bedroom flat for sale in Hedgerow Close, Redditch, B98 — £140,000 • 2 bed • 2 bath • 571 ft²
2 bedroom apartment for sale in Gloucester Close, Enfield, Redditch, B97 — £130,000 • 2 bed • 2 bath • 635 ft²
2 bedroom flat for sale in Bromsgrove Road, Redditch, B97 — £160,000 • 2 bed • 1 bath • 636 ft²
2 bedroom flat for sale in Evesham Street, Redditch, B97 — £150,000 • 2 bed • 1 bath • 593 ft²
2 bedroom apartment for sale in Britannia Close, Smallwood, Redditch, B98 — £140,000 • 2 bed • 1 bath • 625 ft²






























