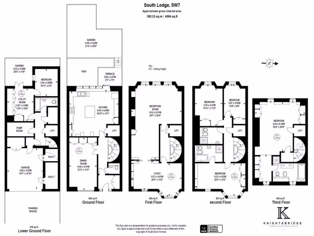
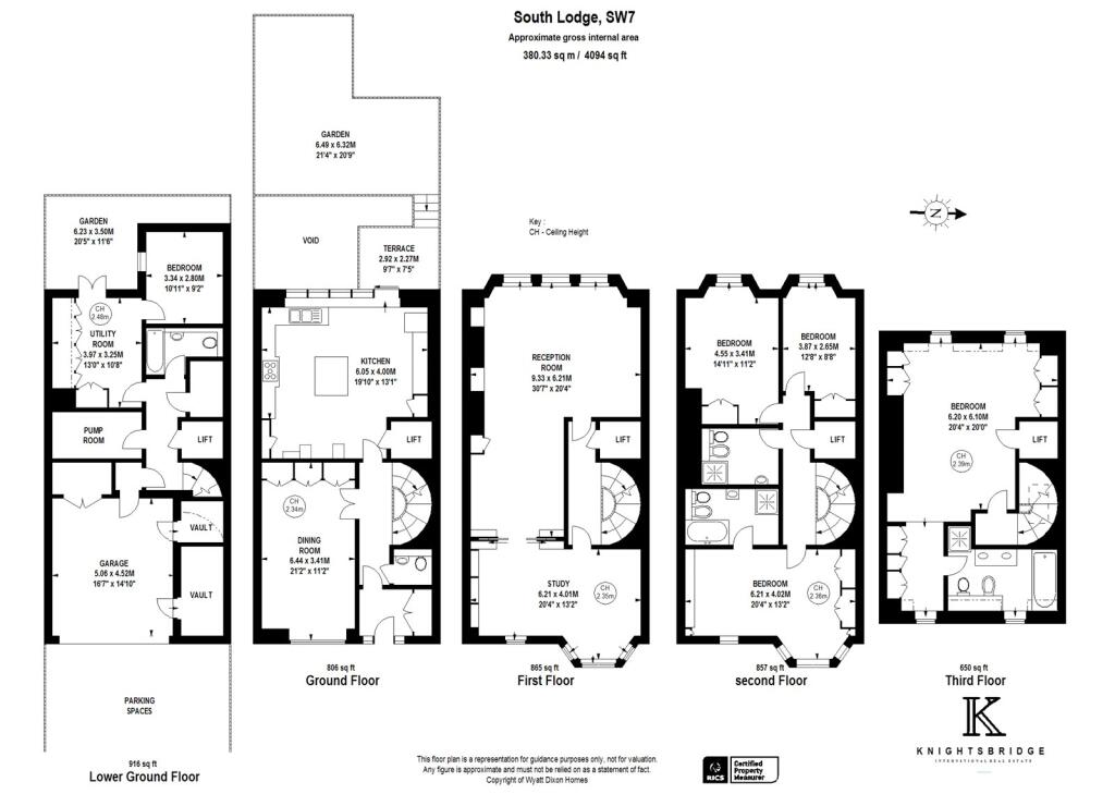
Rare central-London family home with large parking and major renovation potential.
- Approximately 4,094 sq ft over five floors
- Five/six bedrooms, four bathrooms plus guest cloakroom
- Lift to all floors for level access
- Gated underground parking for 3–4 cars and internal garage
- Chain free; prime Knightsbridge location near Hyde Park
- Requires full modernisation throughout
- Potential to add an upper floor subject to planning
- Council tax very expensive; local crime above average
A rare freehold townhouse in the heart of Knightsbridge, this spacious property extends to about 4,094 sq ft across five floors and offers substantial scope for an incoming owner. The house includes five/six bedrooms, four bathrooms plus a guest cloakroom, lift access to every level and gated parking for three to four cars — an exceptional practical pack for central-London living.
The house is offered chain free but is in need of full modernisation. That creates a clear opportunity to reconfigure interiors, upgrade building services and potentially add a further floor (subject to planning) to increase value and usable space. There is also a small garden and an internal garage, useful for storage or conversion depending on plans.
Important factual points: the building dates from the late 1960s/early 1970s and appears to have cavity walls with no known insulation upgrades. Double glazing is present but install date is unknown. Heating is mains gas with boiler and radiators. Council tax is very expensive, and local crime levels are reported above average — factors to consider for budgeting and security planning.
For families or an owner-occupier seeking a prime Knightsbridge address, the location is outstanding — Hyde Park and Harrods are within easy reach and numerous independent schools and amenities surround the property. For buyers with renovation appetite, the house offers both immediate central-London living and clear potential to create a contemporary, high-value residence tailored to personal taste.
5 bedroom town house for sale in Moncorvo Close, SW7 — £4,950,000 • 5 bed • 4 bath • 2766 ft²
6 bedroom town house for sale in Brompton Square, Knightsbridge, London, London, SW3, United Kingdom, SW3 — £8,500,000 • 6 bed • 5 bath • 3638 ft²
4 bedroom house for sale in Trevor Street, Knightsbridge SW7 — £3,950,000 • 4 bed • 4 bath • 2137 ft²
5 bedroom house for sale in Moncorvo Close, Knightsbridge SW7 — £4,950,000 • 5 bed • 3 bath • 2769 ft²
5 bedroom town house for sale in Moncorvo Close, London, SW7 — £11,000,000 • 5 bed • 4 bath • 3335 ft²
5 bedroom house for sale in Knightsbridge Street , Knightsbridge, London, SW7, United Kingdom, SW7 — £12,950,000 • 5 bed • 5 bath • 5565 ft²


























































































































































