Generous family living with large garden and versatile ground-floor space.
Large corner plot with substantial wrap-around garden and raised patio
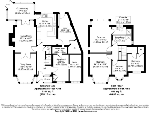
Set on a prominent corner plot on Ulverley Green Road, this detached 1930s family house combines generous indoor space with a large, private wrap-around garden. The ground floor offers flexible living: formal dining, a living room opening to a conservatory, an impressive breakfast kitchen with utility lean-to, plus a converted garage providing a sitting room/bedroom and shower room. Upstairs are four well-proportioned bedrooms, including a principal with en-suite, and a modern family bathroom.
The property suits buyers seeking substantial outdoor space and off-street parking — a deep driveway provides space for multiple vehicles. Mature trees, a raised patio and lawn create an attractive, sheltered garden for children and entertaining. Fast broadband and a short walk to Olton station make the home practical for commuting and home working.
There is clear potential to update or extend (subject to planning consent) to increase value or tailor accommodation to changing family needs. Note the converted garage and any past works should be checked for building regulation compliance by prospective purchasers. Council Tax sits in Band D and should be factored into ongoing costs.
Overall this is a versatile, well-located family home in an affluent area with strong schools nearby, immediate outdoor amenity and scope for modernisation to suit a growing household.
5 bedroom detached house for sale in Buryfield Road, Solihull, B91 — £750,000 • 5 bed • 3 bath • 2105 ft²
3 bedroom bungalow for sale in Haseley Road, Solihull, B91 — £700,000 • 3 bed • 2 bath • 1086 ft²
4 bedroom detached house for sale in Buryfield Road, Solihull, B91 — £675,000 • 4 bed • 1 bath • 1750 ft²
3 bedroom detached house for sale in Ulverley Green Road, Solihull, B92 — £425,000 • 3 bed • 2 bath • 1080 ft²
4 bedroom detached house for sale in Oldway Drive, Solihull, B91 — £930,000 • 4 bed • 2 bath • 2770 ft²
4 bedroom detached house for sale in Warwick Road, Solihull, B91 — £1,125,000 • 4 bed • 4 bath • 1901 ft²


























































































