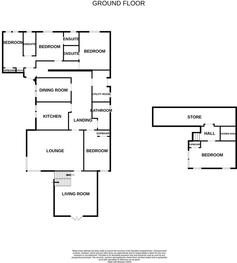
**Standout Features:**
- Substantially extended end-terraced cottage currently functioning as a Bed & Breakfast
- Excellent rural views and potential for HMO operation
- 5 bedrooms, 4 with ensuite bathrooms
- Spacious fitted kitchen with modern appliances and island breakfast bar
- Living and dining areas with stunning views and log-burning stove
- Ample parking for several vehicles and low-maintenance garden
- Eco-friendly with biomass heating and electric car charging point
**Summary:**
Discover this charming and versatile end-terraced cottage, perfect for family living or investors seeking a potential Bed & Breakfast or HMO opportunity. Boasting five bedrooms, four with ensuite facilities, this property balances comfort and practicality, making it an ideal family home. The spacious kitchen, equipped with modern appliances and an inviting island, flows into generous living and dining areas that showcase breathtaking views of the surrounding countryside.
Despite its excellent condition and functionality, the location may present challenges given the area's deprivation; however, the property's serene environment ensures a sense of privacy and security. With ample off-street parking, a low-maintenance garden, and eco-friendly features, this cottage calls for those who appreciate the simplicity of rural living with the added benefit of potential income generation. Act fast to secure this unique opportunity!
3 bedroom semi-detached house for sale in Cairngreen, Cupar, Fife, KY15 — £320,000 • 3 bed • 2 bath • 1302 ft²
2 bedroom semi-detached house for sale in Muirhead Of Pitcullo Farm Cottage, Dairsie, Cupar, KY15 — £279,000 • 2 bed • 1 bath • 1130 ft²
4 bedroom detached house for sale in Fincraigs Farm Cottages, Cupar, Gauldry, KY15 — £385,000 • 4 bed • 2 bath • 2220 ft²
3 bedroom detached house for sale in Brunton, Cupar, Fife, KY15 — £395,000 • 3 bed • 1 bath • 1162 ft²
5 bedroom detached house for sale in Bowburn, Baldinnie, KY15 — £375,000 • 5 bed • 2 bath • 1936 ft²
4 bedroom detached house for sale in 20 Monkstown, Ladybank, KY15 — £325,000 • 4 bed • 3 bath • 1528 ft²


































































































































































































































































































































