DA17 5DE - 2 bedroom bungalow for sale in Abbey Road, Belvedere, DA17

View on Property Piper

2 bedroom bungalow for sale in Abbey Road, Belvedere, DA17

Summary - 64 Abbey Road DA17 5DE

2 bed 1 bath Bungalow

**Property Highlights:**
- Chain free semi-detached bungalow
- Two spacious bedrooms and one bathroom
- 85ft rear garden, perfect for outdoor enjoyment
- Requires modernisation, presenting renovation potential
- Close proximity to local amenities and transport links (Belvedere Station within 0.5 mile)
- Energy Efficiency Rating: G

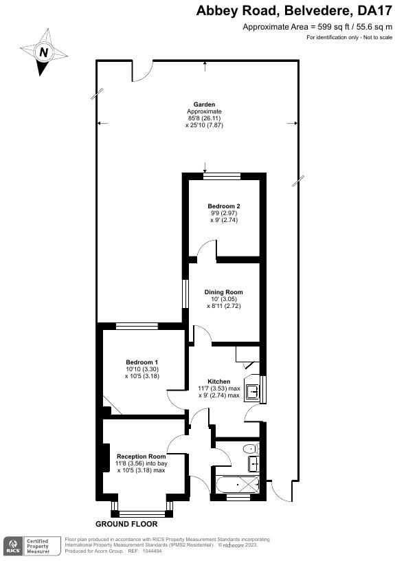
Discover the potential of this chain-free two-bedroom semi-detached bungalow, situated in the vibrant heart of Belvedere. With 599 sqft of single-story living space, this property features two generously sized bedrooms, two reception rooms—one directly accessible from the kitchen—and a well-sized bathroom. The expansive 85ft rear garden invites you to envision outdoor gatherings or personal landscaping projects.

While the bungalow requires modernisation, it offers an incredible opportunity for buyers looking to add value and make it their own. Located just a short distance from shops, schools, parks, and transport links to central London, this home is ideally positioned for families and commuters alike. Local schools have received 'Good' Ofsted ratings, catering to young families searching for a supportive community. Don't miss your chance to capitalize on the fluidity and potential of this urban haven—properties like this are seldom available for long!

Property Details

Image Descriptions

Floorplan Description

Rooms

Textual Property Features

Detected Visual Features

EPC Details

Nearby Schools

Nearest Bars And Restaurants

,,,,}

Nearest General Shops

,,}

Nearest Grocery shops

,,}

Nearest Supermarkets

,,}

Nearest Religious buildings

,,}

Nearest Medical buildings

,,,}

Nearest Airports

,,}

Nearest Leisure Facilities

,,,,}

Nearest Tourist attractions

,,}

Nearest Train stations

,,,,}

Nearest Bus stations and stops

,,,,}

Nearest Hotels

,,}

Tags

Local Market Stats

AirBnB Data

Meta

High Res Images

Compatible Images

Low res Images

Thumbnails

Raw Images

High Res Floorplan Images

Compatible Floorplan Images

Low res Floorplan Images

FloorplanImages Thumbnail

Raw Floorplan Images