RG14 5DH - 2 bedroom maisonette for sale in Newbury, Berkshire, RG14

View on Property Piper

2 bedroom maisonette for sale in Newbury, Berkshire, RG14

Summary - 55, Cheap Street, NEWBURY RG14 5DH

2 bed 1 bath Maisonette

Refurbished two-bedroom maisonette, steps from Newbury station and shops.
100m from Newbury train station and town centre
Light-filled, newly renovated two-bedroom maisonette in the heart of Newbury, ideal for first-time buyers or commuter investors. Set on the first floor of a Georgian-style mixed-use building, the flat sits just 100 metres from Newbury train station and the town centre, so shops, restaurants and transport are all on the doorstep.

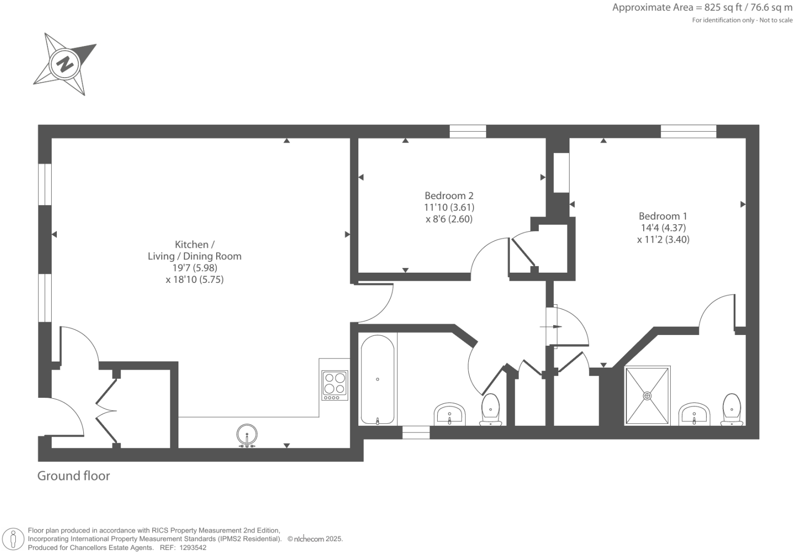
The apartment has a contemporary kitchen with integrated appliances, a living room, master bedroom with ensuite and a second double bedroom. Electric underfloor heating provides whole-home warmth; broadband and mobile reception are both strong. The property is chain-free and comes with a very long lease (999 years from 2019).

Practical considerations: the flat faces a busy main street and is in a town-centre location, which can mean daytime noise and limited privacy for some buyers. Crime levels in the area are reported as high. Heating is electric, which may be more costly than gas in some circumstances. Overall size is average at around 825 sq ft, recently refurbished to a show-home standard and suited to buyers wanting a low-mess move-in or a rental-ready investment opportunity.

Property Details

Image Descriptions

Rooms

Textual Property Features

Target Audience

AI Tags

Detected Visual Features

EPC Details

Nearby Schools

Nearest Bars And Restaurants

,,,,}

Nearest General Shops

,,}

Nearest Grocery shops

,,}

Nearest Supermarkets

,,}

Nearest Religious buildings

,,}

Nearest Medical buildings

,,,}

Nearest Leisure Facilities

,,,,}

Nearest Tourist attractions

,,}

Nearest Train stations

,,,,}

Nearest Bus stations and stops

,,,,}

Nearest Hotels

,,}

Tags

Local Market Stats

AirBnB Data

Similar Properties

Meta

High Res Images

Compatible Images

Low res Images

Thumbnails

Raw Images

High Res Floorplan Images

Compatible Floorplan Images

Low res Floorplan Images

FloorplanImages Thumbnail

Raw Floorplan Images