Spacious eco-friendly family house on a large private plot near beach and trails.
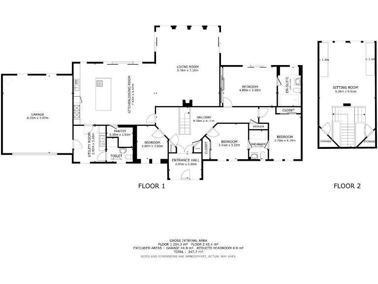
Large contemporary detached house — approx. 2,666 sq ft, four bedrooms, three bathrooms
Set in c.1.5 acres with woodland, private lawn and direct trail access
Double-height entrance, glazed gables and high ceilings for exceptional natural light
Open-plan kitchen/dining/living with wide doors to garden — strong indoor/outdoor flow
Solar panels and ground-floor underfloor heating improve energy efficiency
Double garage, large driveway; integrated appliances included where stated
Located in a remoter, very deprived area — limited local services and amenities
Council tax described as expensive; large plot and woodland need ongoing maintenance
Set on roughly 1.5 acres at the edge of a private woodland, Sandymoss is a contemporary detached home that balances high-spec modern living with coastal countryside calm. The house’s double-height entrance, large glazed gables and open-plan kitchen/dining/living area create bright, social spaces that flow directly to the grounds — ideal for family life and entertaining. Solar panels and underfloor heating contribute to lower running costs and a strong eco-friendly specification.
Four generous bedrooms and three bathrooms provide practical flexibility for families, home-working or guests, while built-in storage, a utility room and integral double garage add day-to-day convenience. The plot includes lawn and mature trees with direct access to pinewood trails and Roseisle’s long sandy beach; local attractions include championship golf courses, the Speyside whisky trail and nearby towns such as Elgin and Forres.
Buyers should note a few material considerations. The property sits in a remoter, very deprived area for which local services are more limited; mobile signal is only average. Council tax is described as expensive, and the large plot and woodland will require ongoing maintenance. Photos and floorplans are for guidance and some items and appliances are sold as stated — purchasers should carry out their own inspections and tests before committing.
In short, Sandymoss will suit buyers seeking a high‑spec, contemporary family home or substantial second residence close to coast and countryside. It offers generous internal space (approximately 2,666 sq ft), strong natural light, eco-features and excellent indoor–outdoor flow, with the practical trade-offs of rural living and higher running/maintenance responsibilities.
4 bedroom detached house for sale in Hardy House, Roseisle, Elgin, IV30 — £495,000 • 4 bed • 3 bath • 1969 ft²
4 bedroom detached house for sale in 6 Easter Coltfield, Alves, Elgin, Moray, IV30 — £675,000 • 4 bed • 3 bath • 3087 ft²
5 bedroom detached house for sale in Hallowood Road, Elgin, IV30 — £550,000 • 5 bed • 2 bath • 3920 ft²
4 bedroom detached house for sale in Dunkinty, Elgin, IV30 — £625,000 • 4 bed • 4 bath • 2509 ft²
4 bedroom detached house for sale in Lochy Park View, Longmorn, IV30 — £675,000 • 4 bed • 4 bath • 3585 ft²
5 bedroom detached bungalow for sale in Birnie, IV30 — £800,000 • 5 bed • 5 bath • 4448 ft²


















































































































































































