Spacious plot, strong extension potential in a sought-after town fringe location.
Three bedroom detached on large plot with private no-through lane access
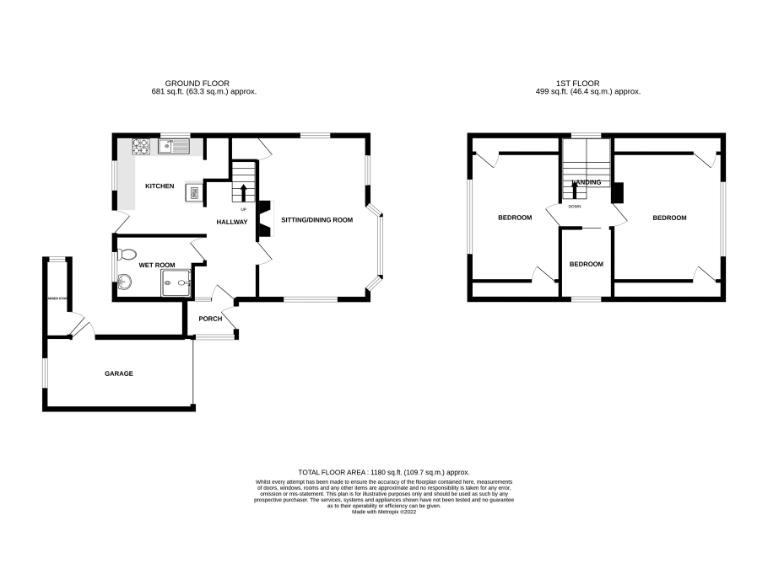
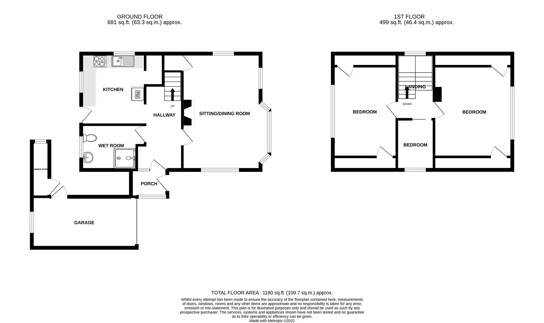
Set at the end of a private no-through lane in sought-after St. Stephens, this three-bedroom detached house sits on a generous plot with far-reaching partial views. The exterior and gardens are well maintained; inside the home offers a solid, traditional layout ready for modernisation and personalisation. Buyers will appreciate the clear potential to extend (subject to planning) and the option to incorporate the garage or outhouse into living space.
Practical features include mains gas central heating with a modern Worcester combination boiler and double glazing throughout, plus vacant possession for a quick move. The ground floor arrangement includes a large triple-aspect sitting/dining room and a wet room currently fitted for accessibility that could be remodelled into a contemporary bathroom. Upstairs are two good-sized doubles and a single bedroom — the front room enjoys partial views toward the town and countryside.
Important considerations: the property requires internal updating and renovation work, and the EPC rating is D57. The cavity walls are as-built with no known insulation (assumed), so energy-efficiency improvements may be needed. There is only one bathroom/wet room for three bedrooms. Any extension or significant structural change would require planning permission and local authority approval.
For families seeking space near local schools and town amenities, or buyers aiming to add value through refurbishment and extension, this home offers a rare combination of location, plot size and potential in Launceston. Viewing is recommended to appreciate the plot and the possibilities fully.
4 bedroom detached house for sale in Riverside Mills, Launceston, PL15 — £309,950 • 4 bed • 2 bath • 1185 ft²
4 bedroom detached house for sale in Grammers Park, Launceston, Cornwall, PL15 — £325,000 • 4 bed • 2 bath • 440 ft²
3 bedroom house for sale in Western Road, Launceston, PL15 — £279,950 • 3 bed • 2 bath • 1038 ft²
3 bedroom detached house for sale in Woburn Road, Launceston, Cornwall, PL15 — £425,000 • 3 bed • 2 bath • 1938 ft²
3 bedroom semi-detached house for sale in Roydon Close, Launceston, Cornwall, PL15 — £320,000 • 3 bed • 1 bath • 982 ft²
3 bedroom detached house for sale in Wooda Lane, Launceston, PL15 — £339,000 • 3 bed • 2 bath • 1195 ft²






















































































