Large south-facing garden and generous parking; ideal for buyers seeking renovation potential.
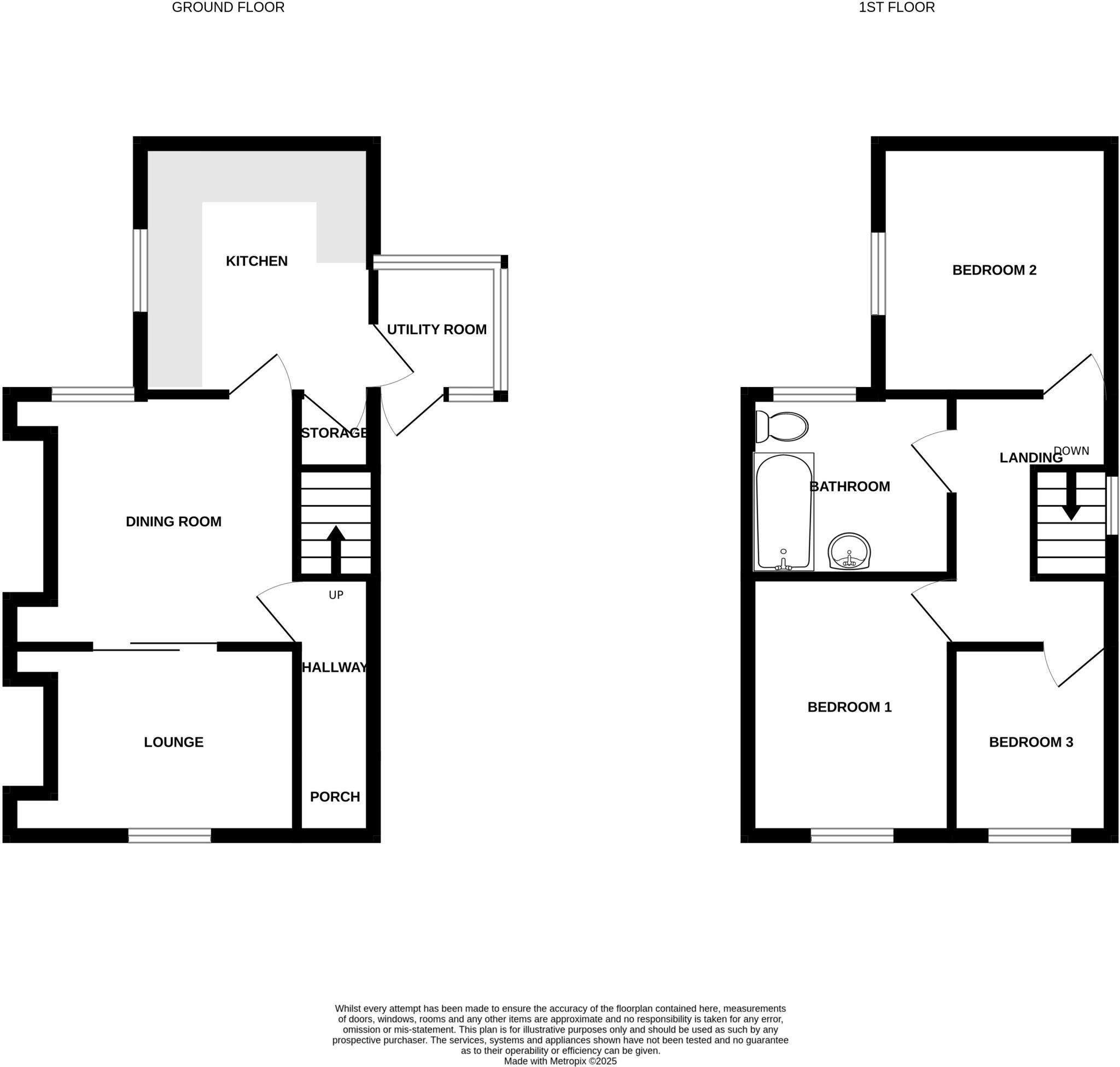
Freehold detached house with three bedrooms
This three-bedroom detached house on Swansea Road offers solid fundamentals: freehold tenure, gas central heating, and a large south-facing garden with ample off-street parking. Positioned on an elevated plot, the property benefits from good local amenities, public transport links and quick access to the M4 and Swansea city centre.
The house is dated and requires modernisation throughout — the hallway shows signs of damp and many original fixtures need renewal. Internally the layout is traditional with two reception rooms, a ground-floor utility and a single bathroom, so there is clear scope to reconfigure or update to current living standards.
For buyers seeking renovation potential, this home represents value: the plot is large with potential to extend (subject to consents), and the south-facing rear garden is a major asset. Be aware the overall floor area is modest (788 sq ft) and the surrounding area has higher crime levels and pronounced deprivation indicators, which should factor into longer-term plans.
This property will suit a hands-on first buyer or investor prepared to carry out works to modernise and improve energy and cosmetic standards. Conveyancers should confirm all searches and reports, and any interested party should inspect the property to assess the damp issue and scope of required repairs.
4 bedroom semi-detached house for sale in Barnabas Close, Swansea, SA5 — £240,000 • 4 bed • 2 bath • 911 ft²
3 bedroom semi-detached house for sale in Vivian Street, Swansea, SA1 — £180,000 • 3 bed • 1 bath • 716 ft²
3 bedroom detached house for sale in Siloh Road, Landore, Swansea, SA1 2PE, SA1 — £147,000 • 3 bed • 1 bath • 847 ft²
3 bedroom semi-detached house for sale in Midland Place, Swansea, SA7 — £185,000 • 3 bed • 2 bath • 795 ft²
3 bedroom semi-detached house for sale in Arennig Road, Penlan, Swansea, SA5 — £140,000 • 3 bed • 1 bath • 659 ft²
3 bedroom detached house for sale in Swansea Road, Llangyfelach, SWANSEA, SA5 — £290,000 • 3 bed • 1 bath • 1046 ft²






































































































