Low-maintenance single-level home with garage and off-street parking.
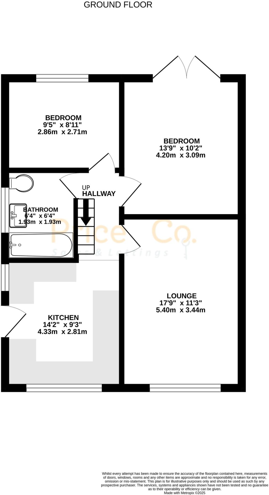
- Two-bedroom single-level living with clear, practical layout
- Main bedroom with French doors onto rear patio
- Private low-maintenance rear garden with paved seating area
- Driveway plus detached garage for parking and storage
- Modern kitchen, double glazing and mains-gas central heating
- Leasehold tenure — check remaining term and any charges
- EPC D — potential for energy-efficiency improvements
- Single bathroom; 635 sq ft may feel compact for larger families
This two-bedroom semi-detached bungalow in Abbot Croft offers practical, single-level living in a quiet Westhoughton neighbourhood popular with downsizers. The layout is straightforward: a generous front lounge with feature fireplace, a well-equipped kitchen, two bedrooms and a modern three-piece bathroom. The main bedroom opens onto a paved patio, creating a pleasant indoor-outdoor flow.
Outside is low-maintenance and well-arranged for everyday use. A private rear garden combines a paved seating area and lawn, with gated side access, detached garage and a driveway providing off-street parking. Modern double glazing and a mains-gas boiler give efficient everyday comfort, while broadband and mobile signal are strong for working from home or streaming.
Practical considerations are important: the property is leasehold and the EPC is rated D, so prospective buyers should check remaining lease length and factor energy performance improvements into the budget. The accommodation totals about 635 sq ft and contains a single bathroom, which may suit downsizers or first-time buyers but could feel limiting for larger households.
Positioned for convenience, the bungalow sits close to local shops, community facilities and well-rated primary schools, with two nearby train stations and quick road links to the M61. For someone seeking a tidy, low-maintenance home with scope for small energy or cosmetic upgrades, this bungalow represents sensible value in an affluent, low-crime area.
2 bedroom semi-detached bungalow for sale in Bee Hive Green, Westhoughton, Bolton, BL5 — £250,000 • 2 bed • 1 bath • 597 ft²
2 bedroom semi-detached bungalow for sale in Wigan Road, Westhoughton, Bolton, BL5 — £220,000 • 2 bed • 1 bath • 640 ft²
2 bedroom bungalow for sale in Lower Southfield, Westhoughton, BL5 — £247,000 • 2 bed • 1 bath • 667 ft²
2 bedroom semi-detached bungalow for sale in Stanley Grove, Horwich, Bolton, BL6 — £240,000 • 2 bed • 1 bath • 759 ft²
2 bedroom bungalow for sale in Belmont View, Harwood, Bolton, BL2 3QW, BL2 — £250,000 • 2 bed • 1 bath • 926 ft²
3 bedroom semi-detached house for sale in Singleton Grove, Westhoughton, BL5 — £275,000 • 3 bed • 3 bath • 969 ft²






































