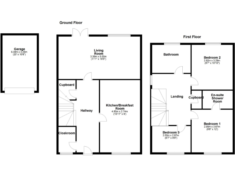
Three-bedroom property with garage, garden and excellent commuter links.
- Built 2021 with contemporary finishes
- Three bedrooms; principal bedroom with ensuite
- Modern kitchen/breakfast room, separate living room
- Driveway parking, detached garage and EV charger
- Large private rear garden with scope to extend
- Monthly estate management charge applies
- Freehold; no flood risk and excellent broadband
- Convenient village location near primary school
Set just off a quiet no-through road in Blunsdon, this three-bedroom detached house built in 2021 pairs modern finish with village convenience. The ground floor offers a welcoming hall and WC, a contemporary kitchen/breakfast room and a living room that opens onto a private rear garden — a practical, light-filled layout for everyday family life and entertaining.
Upstairs are three well-proportioned bedrooms, including a principal bedroom with an ensuite and a separate family bathroom. The property includes a detached garage, driveway parking with an EV charger and mains gas central heating, delivering low-hassle, modern living in an affluent village setting close to primary schools, a shop and local pubs.
The substantial plot is a major asset, offering scope for garden landscaping, outdoor living or future extension subject to planning. Buyers should note a monthly estate management charge applies and the house is freehold. Overall, the balance of recent construction, practical specification and excellent local connections makes this a strong choice for families and commuters seeking village life without compromising on convenience.
4 bedroom detached house for sale in Minerva Heights, Blunsdon, Swindon, SN26 — £500,000 • 4 bed • 2 bath • 1260 ft²
3 bedroom semi-detached house for sale in Malthouse Close, Swindon, SN26 — £375,000 • 3 bed • 1 bath • 803 ft²
4 bedroom end of terrace house for sale in Holdcroft Close, Blunsdon, Swindon, SN26 — £475,000 • 4 bed • 3 bath • 1625 ft²
3 bedroom detached house for sale in Magdalene Close, South Marston, Swindon, SN3 — £375,000 • 3 bed • 2 bath • 1037 ft²
4 bedroom terraced house for sale in Thames View, Blunsdon, SN26 8AQ, SN26 — £430,000 • 4 bed • 2 bath • 1309 ft²
5 bedroom detached house for sale in Aki Court, Blunsdon, Swindon, SN26 — £699,500 • 5 bed • 3 bath • 1885 ft²


































































































































