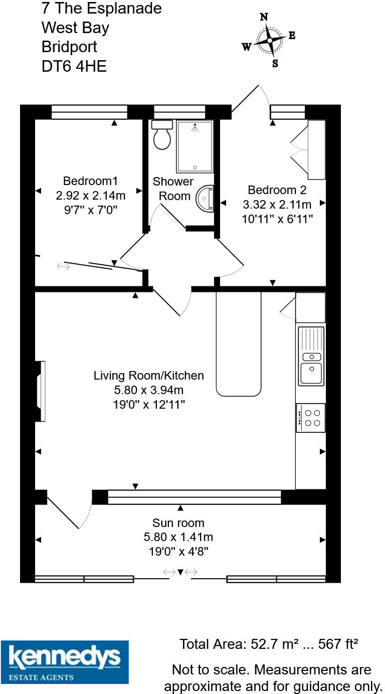
**Standout Features:**
- Coastal mid-terrace chalet with stunning seaside views
- Two bedrooms and one modernized shower room
- Recent updates include new electrical heating and double glazing
- Small private garden and shared lawned area
- Garage parking included
- Chain-free and share of freehold tenure
**Potential Concerns:**
- Property needs renovation for full potential
- High service charge of £3,971 for 2023-2024
- May involve further future service charges for ongoing repairs
---
Discover this charming coastal chalet, a perfect blend of potential and comfort, located moments from the beach in DT6 4HE. With two bedrooms and a thoughtfully updated shower room, this mid-terrace retreat boasts modern amenities, including recently installed double glazing and an electric heating system. A lovely enclosed porch offers southern sunshine and serene views over the sea, while the well-proportioned open-plan living space features a breakfast bar for dining convenience.
Though it requires renovation to truly shine, this property offers excellent investment opportunities, whether for permanent living, a holiday home, or a rental property. Enjoy a shared outdoor space leading to a small private garden, ideal for relaxation or gardening, along with the bonus of a garage for your vehicle. Within a friendly community of ageing rural neighbourhoods, this location is affluent with easy access to local amenities, including restaurants and shops.
The exclusive charm of seaside living awaits, but don't wait too long—properties like this one, with such breathtaking views and potential, don't come around often!
2 bedroom apartment for sale in Flat 10, The Esplanade, West Bay, Bridport, DT6 — £200,000 • 2 bed • 1 bath • 555 ft²
2 bedroom bungalow for sale in East Cliff, West Bay, Bridport, DT6 — £400,000 • 2 bed • 1 bath • 723 ft²
2 bedroom apartment for sale in Old Shipyard Centre, West Bay, Bridport, Dorset, DT6 — £280,000 • 2 bed • 1 bath • 883 ft²
2 bedroom apartment for sale in Chesil House, Station Road, West Bay, DT6 — £250,000 • 2 bed • 1 bath • 691 ft²
2 bedroom apartment for sale in Esplanade, West Bay, Bridport, DT6 — £220,000 • 2 bed • 1 bath • 549 ft²
2 bedroom apartment for sale in The Old Shipyard, West Bay, Bridport, Dorset, DT6 — £205,000 • 2 bed • 1 bath • 850 ft²






















































