IV2 5XQ - 4 bed daviot heights plot 2 in Inverness, Nairn, Badenoch A…

View on Property Piper

4 bedroom detached house for sale in Plot 2, Daviot Heights, Inverness. IV2 5XQ, IV2

Summary - 2 CRAGGIE VILLA, INVERNESS, DAVIOT IV2 5XQ

4 bed 3 bath Detached

Contemporary single-level 4-bed with garden room, large patio and countryside views.
Four bedroom single-level architect-designed home with luxury finishes
Plot 2 at Daviot Heights is a single-level, architect-designed new build offering one-floor contemporary living across a generous footprint. Thoughtful open-plan living, cathedral ceiling and floor-to-ceiling glazing create a bright social heart, while a separate garden room adds flexible workspace or guest accommodation. Quality fixtures, integrated kitchen appliances and luxury bathrooms position the house as a turnkey family home for buyers who value design and low-maintenance living.

The site is sold as a land-and-build package with staged payments managed under a RIBA chartered architect. LBTT is payable only on the land element, which can reduce upfront tax costs, but buyers should note a non-refundable £5,000 reservation fee and a £20,000 deposit on conclusion of missives. Private drainage (septic tank) and an air-source heat pump with underfloor heating are specified; mains services are provided for electricity and water.

Set about six miles south of Inverness in a small eight-home development, the property offers countryside views, a large patio, private gardens and off-street parking with a carport. Commuting to Inverness, local schooling arrangements and outdoor recreation are all accessible, though the immediate area is described as an ageing, rural neighbourhood with wider area indicators showing high deprivation. Broadband speeds are average; mobile signal is excellent.

This plot suits buyers seeking a bespoke, high-spec single-level home in a rural setting: families wanting generous living space, professionals needing a home office, or downsizers seeking single-floor convenience. Be clear on the purchase structure and staged payment schedule before committing, and factor in private drainage and local service limitations.

Property Details

Image Descriptions

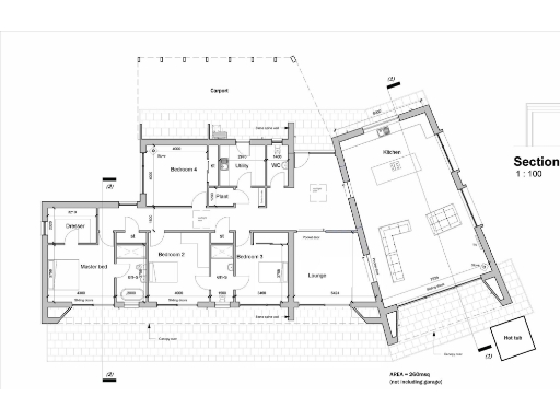
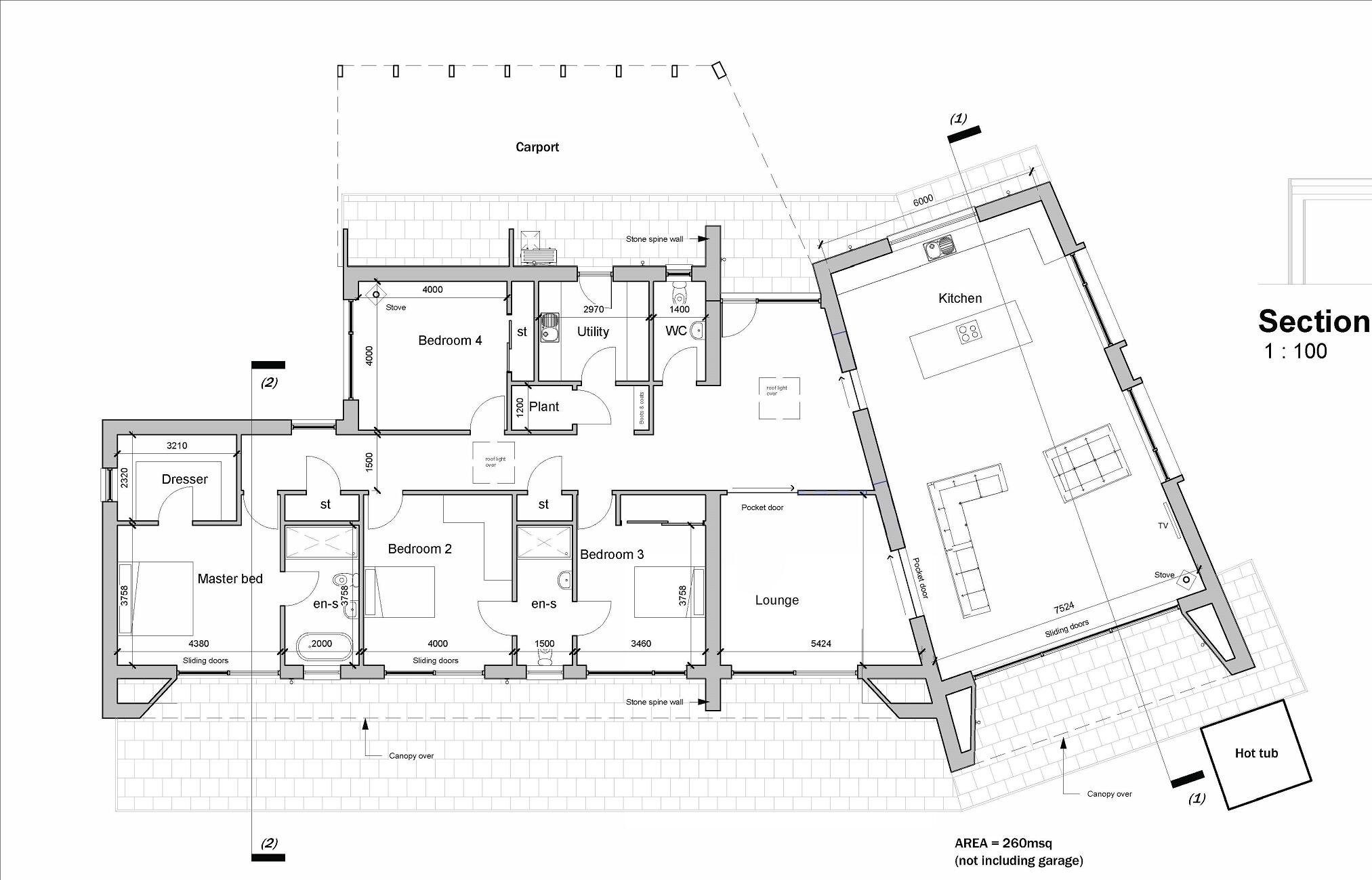
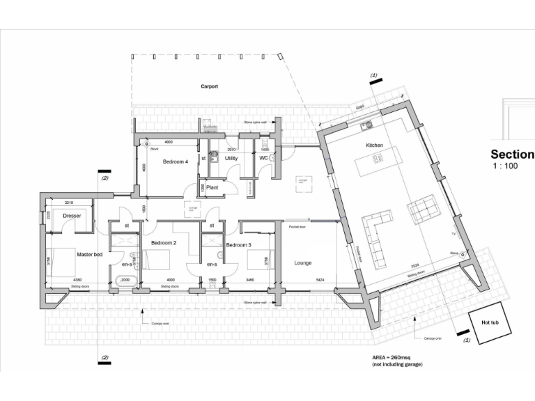
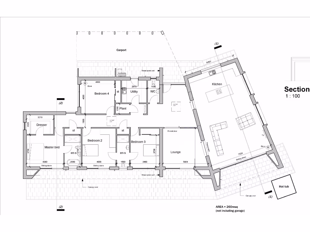
Floorplan Description

Rooms

Textual Property Features

Target Audience

AI Tags

Detected Visual Features

Nearest Bars And Restaurants

,,,,}

Nearest General Shops

,,}

Nearest Grocery shops

,,}

Nearest Supermarkets

,,}

Nearest Religious buildings

,,}

Nearest Medical buildings

,,,}

Nearest Leisure Facilities

,,,,}

Nearest Tourist attractions

,,}

Nearest Train stations

,,,,}

Nearest Bus stations and stops

,,,,}

Nearest Hotels

,,}

Tags

Local Market Stats

AirBnB Data

Similar Properties

Meta

High Res Images

Compatible Images

Low res Images

Thumbnails

Raw Images

High Res Floorplan Images

Compatible Floorplan Images

Low res Floorplan Images

FloorplanImages Thumbnail

Raw Floorplan Images