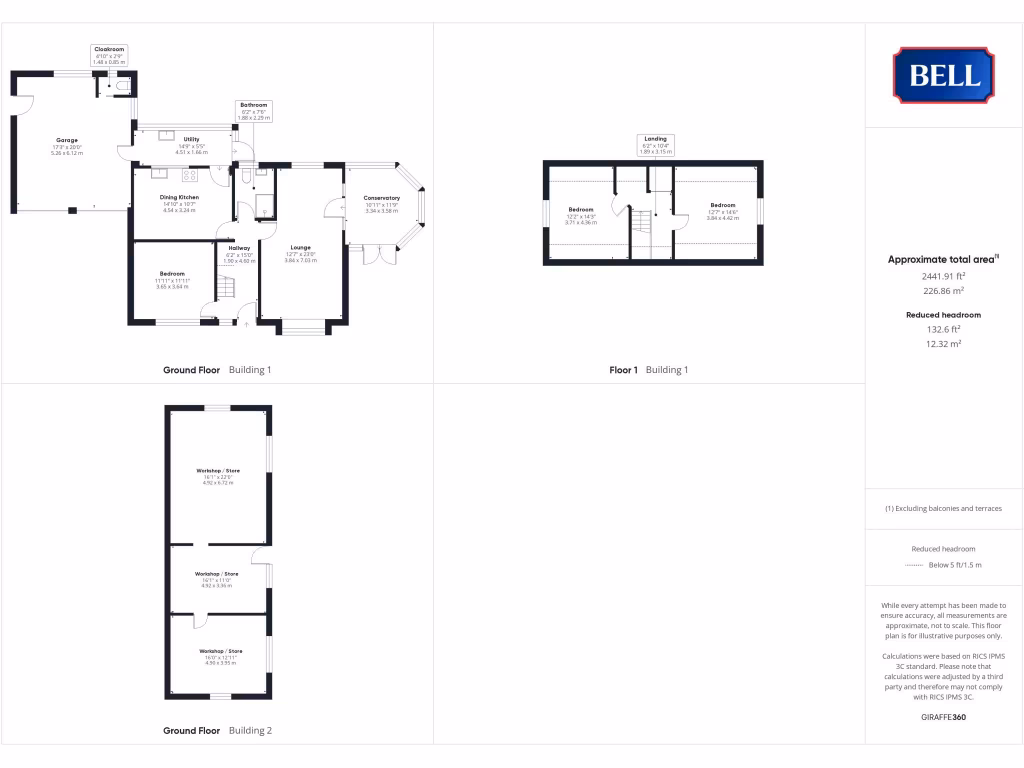
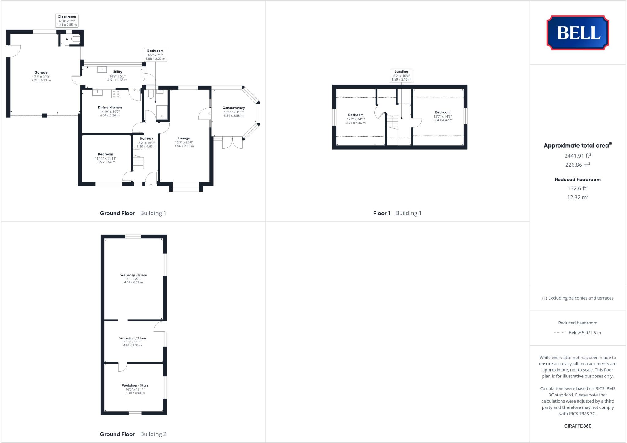
Large three-bed dormer bungalow with double garage and open field views — no onward chain.
- Three-bedroom dormer bungalow with ground-floor master and shower room
- Very large overall size: 2,441 sq ft on a very large plot
- Double garage plus separate trio of workshop/stores
- Spacious living room, conservatory and dining kitchen
- Open easterly and westerly field views, private gardens
- Kitchen is dated and will need modernisation
- Only one bathroom; may limit larger families
- Very slow broadband; remoter rural area
Set on an unusually large plot on the edge of Little Steeping, this three-bedroom dormer bungalow suits multigenerational households or purchasers wanting space and privacy. The ground-floor master bedroom and shower room alongside two first-floor bedrooms give flexible living without immediate need to use stairs for every day. A conservatory, dual-aspect living room and generous dining kitchen provide comfortable family living with strong indoor–outdoor flow to wide easterly and westerly field views.
Practical extras include a double garage and a separate trio of workshop/stores — useful for hobbies, small-scale workshop use or storage. The property is offered with NO ONWARD CHAIN and is FREEHOLD, making occupation or letting straightforward. With 2,441 sq ft overall, the house sits on a very large plot that could suit garden improvements or extension subject to planning.
Note the property has some dated elements and practical limitations: the kitchen is dated (linoleum flooring, older cabinetry and formica worktops) and there is only one bathroom/shower room. Broadband speeds are very slow and the area is classified as a remoter, deprived rural community, which may affect home working or commuting. Mobile signal is average. These are material factors to consider alongside the home’s size and rural setting.
3 bedroom detached bungalow for sale in Thorpe Road, Firsby, PE23 — £292,500 • 3 bed • 1 bath • 1300 ft²
4 bedroom detached bungalow for sale in Station Road, Firsby, PE23 — £350,000 • 4 bed • 1 bath • 1300 ft²
3 bedroom cottage for sale in Great Steeping, Spilsby, PE23 — £299,950 • 3 bed • 2 bath • 1593 ft²
3 bedroom detached bungalow for sale in Bratoft, Skegness, PE24 — £319,950 • 3 bed • 1 bath • 1043 ft²
3 bedroom detached bungalow for sale in Ashby Meadows, Spilsby, PE23 — £260,000 • 3 bed • 2 bath • 1500 ft²
4 bedroom house for sale in Great Steeping, Spilsby, PE23 — £445,000 • 4 bed • 2 bath • 4916 ft²














































































































