KA27 8PX - 4 bedroom villa for sale in Ardshiel, Whiting Bay, Isle Of…

View on Property Piper

4 bedroom villa for sale in Ardshiel, Whiting Bay, Isle Of Arran, KA27

Summary - ARDSHIEL, ISLE OF ARRAN, WHITING BAY KA27 8PX

4 bed 3 bath Villa

**Standout Features:**
- 4 Bedrooms, 3 Bathrooms
- Panoramic sea views over the Firth of Clyde
- Elevated location in Whiting Bay
- Substantial detached period villa with original features
- Mature, well-maintained gardens (~1/3 acre)
- Off-road parking for multiple cars
- Short walk to village amenities including shops and beach

**Potential Downsides:**
- Requires maintenance typical of older properties
- Above-average council tax rating

Nestled in the picturesque village of Whiting Bay on the Isle of Arran, Ardshiel is a distinguished 4-bedroom villa that perfectly combines elegance with comfort. This substantial, detached home showcases a classic Victorian design with its high ceilings and large sash windows, inviting abundant natural light while framing breathtaking panoramic views of the Firth of Clyde. With four spacious reception areas, including a cozy lounge with a wood-burning stove and a bright sunroom leading to a patio, Ardshiel is designed for both family comfort and entertaining.

Offering flexible living arrangements, the home includes well-appointed bedrooms and three modern bathrooms, ensuring convenience for all family members. The beautifully curated gardens provide a serene outdoor retreat, ideal for gatherings or quiet moments of reflection, all while enjoying the scenic coastal vistas. Conveniently located near village amenities, this property promises a vibrant island lifestyle. Embrace the potential of island living that Ardshiel offers—this gem won't be on the market for long!

Property Details

Brochure Descriptions

Image Descriptions

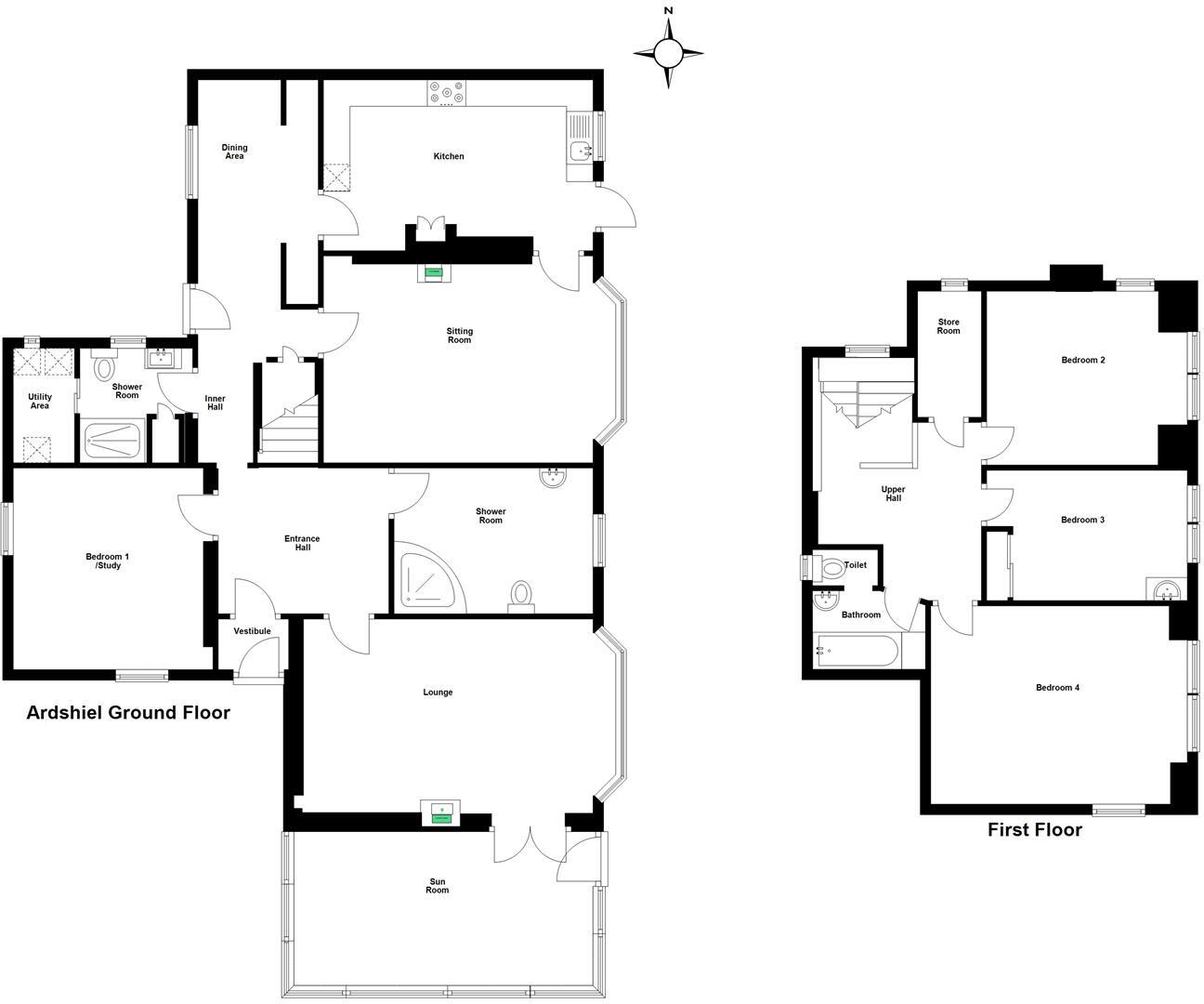
Floorplan Description

Rooms

Textual Property Features

Detected Visual Features

Nearest Bars And Restaurants

,,,,}

Nearest General Shops

,,}

Nearest Grocery shops

,,}

Nearest Supermarkets

,,}

Nearest Religious buildings

,,}

Nearest Medical buildings

,,,}

Nearest Airports

}

Nearest Leisure Facilities

,,,,}

Nearest Tourist attractions

,,}

Nearest Train stations

,,,,}

Nearest Bus stations and stops

,,,,}

Nearest Hotels

,,}

Tags

Local Market Stats

AirBnB Data

Similar Properties

Meta

High Res Images

Compatible Images

Low res Images

Thumbnails

Raw Images

High Res Floorplan Images

Compatible Floorplan Images

Low res Floorplan Images

FloorplanImages Thumbnail

Raw Floorplan Images