**Standout Features:**
- Beautifully presented three-bedroom ground floor flat in a Victorian conversion
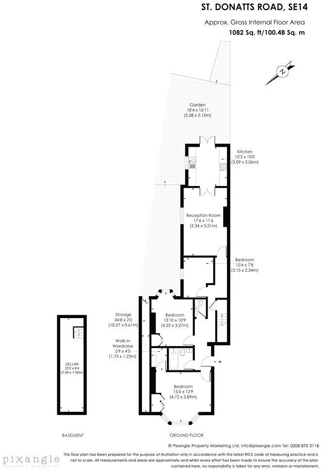
- Spacious internal area of 1,082 sqft with high ceilings and bay windows
- Modern fully-fitted kitchen with integrated appliances and access to an 18'4 private garden
- Separate three-piece bathroom suite plus additional W.C.
- Off-street parking and ample storage options
- Chain-free, offering a smooth move-in process
- Located in New Cross, Zone 2 with excellent transport links
**Summary:**
Discover a charming three-bedroom garden flat situated in a majestic Victorian building on a peaceful one-way street in New Cross. This delightful property spans a generous 1,082 sqft, showcasing a bright living space that seamlessly transitions into a well-equipped kitchen, perfect for entertaining or unwinding. Enjoy the luxury of your own 18'4 private garden, ideal for relaxation.
The bedrooms are spacious, drenched in natural light courtesy of large bay windows, while the principal bedroom features a desirable walk-in wardrobe. A modern three-piece bathroom suite and a separate W.C. enhance the practicality of this living space.
Off-street parking and external storage ensure convenience, making this an excellent choice for families and professionals alike. Positioned within easy reach of both New Cross and New Cross Gate stations, commuting to London’s vibrant center is a breeze. With a diverse array of local amenities, green spaces, and top-rated schools just moments away, this property blends comfort, style, and location seamlessly.
This coveted flat is offered chain-free, presenting an exceptional opportunity to settle into a well-connected area rich in culture and convenience. Don’t miss your chance to make it your own!



















































