Practical three-bedroom home with garage, garden and parking for four vehicles.
Three bedrooms with a modern, fully tiled bathroom and power shower
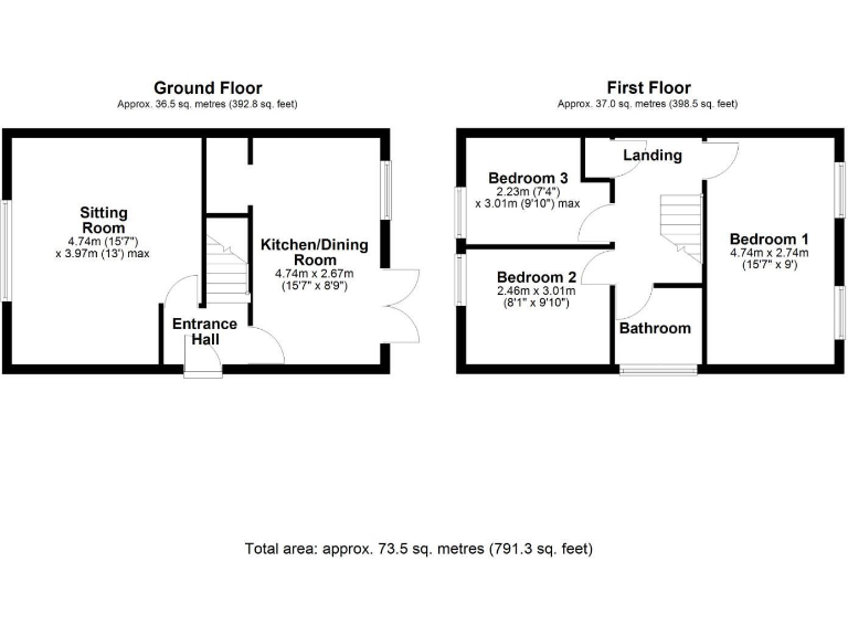
Set within the sought-after Hales Barn area, this three-bedroom semi-detached home delivers practical family living with useful parking and a low-maintenance garden. The ground floor offers a bright sitting room with wooden flooring and a kitchen/diner that opens onto a paved patio — a simple layout that suits everyday life and casual entertaining.
Upstairs there are three well-proportioned bedrooms and a modern, fully tiled bathroom with a power shower. The property benefits from a single garage and two driveways providing off-road parking for up to four vehicles — a strong asset in a busy suburban setting.
The house is freehold and presented with contemporary kitchen and bathroom fittings, so major internal refurbishment isn’t required. Buyers should note the overall internal floorspace is modest (around 791 sq ft) and the plot is relatively small; those seeking substantial garden or extension potential should verify planning options. External pebbledash and mid‑20th century finishes reflect the property's age and may need periodic upkeep.
This home will suit families prioritising local schools and convenient transport links, or first-time buyers wanting a straightforward, move-in-ready property with good parking. Appliances and services have not been independently tested, so any purchaser should arrange their own checks.
3 bedroom semi-detached house for sale in Chapple Drive, Haverhill, Suffolk, CB9 — £279,995 • 3 bed • 1 bath • 904 ft²
3 bedroom semi-detached house for sale in Haverhill, Suffolk , CB9 — £295,000 • 3 bed • 1 bath • 932 ft²
3 bedroom semi-detached house for sale in Cramswell Close, Haverhill, CB9 — £286,950 • 3 bed • 1 bath • 758 ft²
3 bedroom semi-detached house for sale in Chaplains Close, Haverhill, CB9 — £300,000 • 3 bed • 1 bath • 1091 ft²
3 bedroom end of terrace house for sale in Russett Close, Haverhill, CB9 — £260,000 • 3 bed • 1 bath • 708 ft²
3 bedroom semi-detached house for sale in Monarch Close, Haverhill, CB9 — £310,000 • 3 bed • 2 bath • 870 ft²






















































