Spacious period home on over an acre, ideal for large families or restoration buyers.
A‑listed Georgian house with strong heritage character
This exceptional A‑listed Georgian house sits in roughly 1.13 acres of enclosed, landscaped grounds and offers a rare combination of scale, period character and privacy. The principal rooms are generous with high ceilings, sash windows and multiple reception spaces arranged over several floors — well suited to a large family, household with live‑in staff, or those seeking a statement country home close to Musselburgh.
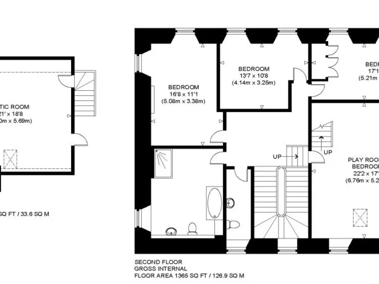
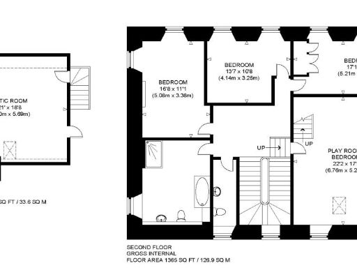
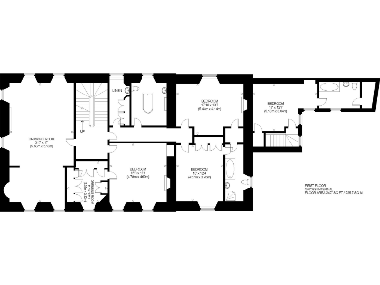
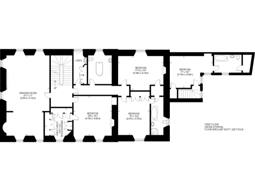
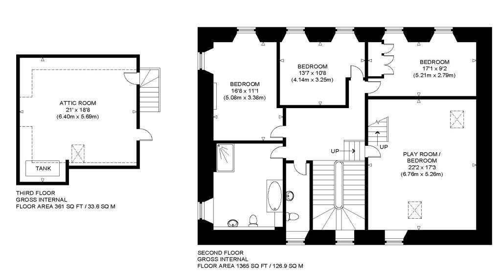
The house extends to around 6,796 sq ft with seven double bedrooms, plentiful reception rooms, attic playroom/bedroom and a substantial basement area accessed via a trap door. Outside there are formal lawns, a woodland garden, courtyard and kitchen garden, plus practical outbuildings including workshop, log store, plant room and garden sheds. The property can be sold as a whole or split into three lots, offering flexibility for buyers or investors.
There are important practical constraints to note. As an A‑listed building, any alterations or modernisation will be tightly controlled and potentially costly; this will affect refurbishment or extension plans. Services are limited: broadband speeds are slow and mobile signal is only average. Council Tax is very expensive (Band H) and the local area is recorded as very deprived, which may impact resale in certain market segments.
Overall this is a handsomely preserved Georgian country house for buyers who value historic fabric, extensive private grounds and flexible use, and who accept listed‑building responsibilities and the need to upgrade utilities where required.
5 bedroom detached house for sale in Kevock Road, Lasswade, Midlothian, EH18 — £1,435,000 • 5 bed • 2 bath • 3856 ft²
4 bedroom semi-detached house for sale in Lugton Brae, Dalkeith, Midlothian, EH22 — £775,000 • 4 bed • 3 bath • 2804 ft²
5 bedroom town house for sale in Great King Street, Edinburgh, EH3 — £1,690,000 • 5 bed • 4 bath • 3650 ft²
9 bedroom detached house for sale in Elvingston, East Lothian, EH33 — £2,400,000 • 9 bed • 7 bath • 13214 ft²
6 bedroom semi-detached house for sale in Blacket Place, Newington, Edinburgh, Midlothian, EH9 — £1,500,000 • 6 bed • 3 bath • 4699 ft²
6 bedroom detached house for sale in Blackness House, Linlithgow, West Lothian, EH49 — £935,000 • 6 bed • 3 bath














































































































































































