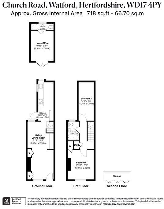
**Standout Features:**
- Charming end-of-terrace Victorian house
- Two spacious double bedrooms
- Self-contained garden room with en-suite, perfect for a home office or guest accommodation
- Open-plan living and dining area
- Modern kitchen with integrated appliances
- Stylish bathroom with shower over the bath
- Chain-free for a smooth purchase
- Great transport links, just a short walk from Watford Junction Station
Located in the desirable Nascot Wood area of Watford, this delightful end-of-terrace house combines modern amenities with traditional charm. The light-filled open-plan living and dining area serves as a perfect space for family gatherings or entertaining guests, seamlessly connecting to a contemporary kitchen designed with integrated appliances. The two double bedrooms, situated on the first floor, provide ample space for family or guests, while the stylish bathroom adds a touch of luxury with its shower over the bath.
A standout element of the property is the self-contained garden room at the rear. Constructed with high-quality panels, it offers versatility as a home office, extra bedroom, or a tranquil retreat, complete with its own en-suite shower. The private garden space adds to the property’s appeal, perfect for outdoor relaxation or family play.
With easy access to Watford Junction Station, commuting to London takes less than 20 minutes, making it an ideal choice for busy professionals. The vibrant Watford Town Centre, with a diverse range of shops, restaurants, and leisure activities, is just a short distance away. Although the property features a small plot and was built before 1900, it has maintained its charm and provides an excellent opportunity for modern living in an affluent area. This chain-free property won’t last long—don’t miss the chance to make it your new home!
3 bedroom end of terrace house for sale in Nascot Street, Watford, WD17 — £675,000 • 3 bed • 1 bath • 1116 ft²
2 bedroom end of terrace house for sale in Church Road, Watford, WD17 — £475,000 • 2 bed • 1 bath • 735 ft²
2 bedroom semi-detached house for sale in Nascot Street, Watford, WD17 — £550,000 • 2 bed • 2 bath • 857 ft²
3 bedroom terraced house for sale in Nascot Street, Watford, WD17 — £485,000 • 3 bed • 2 bath • 962 ft²
2 bedroom end of terrace house for sale in Church Road, Watford, Hertfordshire, WD17 4PY, WD17 — £485,000 • 2 bed • 1 bath • 718 ft²
2 bedroom terraced house for sale in Watford, Hertfordshire, WD18 — £375,000 • 2 bed • 1 bath • 683 ft²






































































































