**Standout Features:**
- Shared ownership at £131,250; monthly rent of £698.87
- Located in the prestigious Goodman's Fields development
- 24-hour concierge support and security
- Access to gym, sauna, and spa facilities
- Communal garden and courtyard
- Outstanding transport links: near Aldgate, Aldgate East, and Whitechapel stations
- Built in 2018; well-maintained
**Summary:**
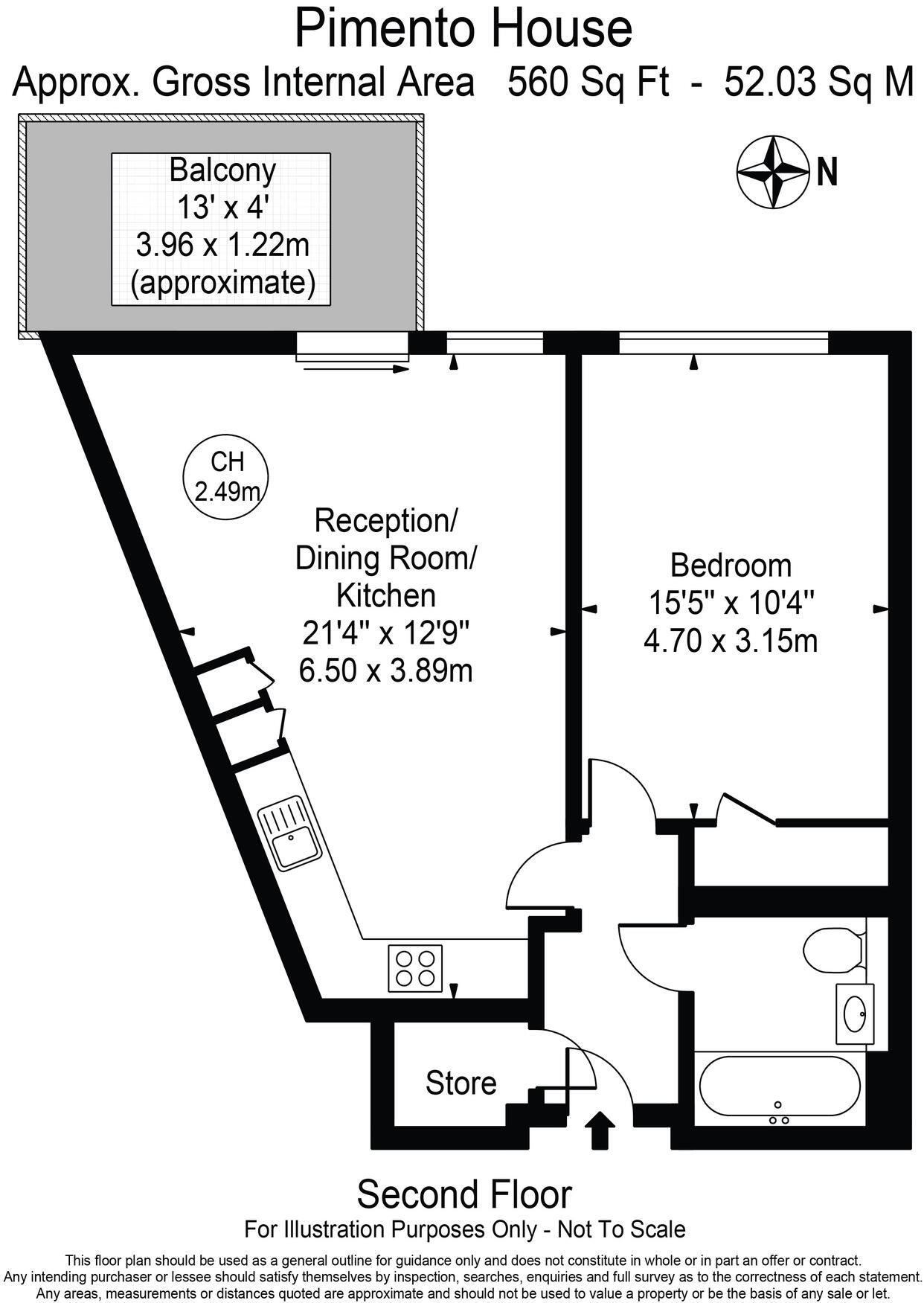
Experience modern urban living in this exceptional 1-bedroom flat within the coveted Goodman's Fields development in E1. Enjoy the convenience of 24-hour concierge service, a state-of-the-art gym, sauna, and tranquil communal gardens, all at your fingertips. This meticulously maintained apartment features an open-plan layout with a stylish kitchen, dining area, and lounge, enhanced by floor-to-ceiling windows. Step out onto your private balcony with a serene garden view – a perfect retreat for unwinding after a busy day.
Located in an inner-city cosmopolitan area, you'll have access to a vibrant selection of cafes, restaurants, and entertainment options. Major transport links are just a short walk away, ensuring easy commutes across London. Schools nearby boast Good ratings from Ofsted, making it an ideal choice for families. While a higher ground rent of £550 is noted, the overall charm, modern features, and prime location make it an opportunity not to be missed. Act fast to secure your slice of luxury city living!
1 bedroom flat for sale in Pimento House, Goodman’s Fields, E1 — £137,500 • 1 bed • 1 bath • 541 ft²
1 bedroom flat for sale in Pimento House, Goodman’s Fields, E1 — £550,000 • 1 bed • 1 bath • 549 ft²
1 bedroom flat for sale in Pimento House, Aldgate, E1 — £150,000 • 1 bed • 1 bath • 538 ft²
2 bedroom flat for sale in 20 Bridle Mews, London, E1 — £182,500 • 2 bed • 1 bath • 673 ft²
1 bedroom flat for sale in Pimento House, Aldgate, E1 — £500,000 • 1 bed • 1 bath • 538 ft²
2 bedroom apartment for sale in Bridle Mews, London E1 — £190,500 • 2 bed • 2 bath • 646 ft²


















































































