Move-in ready Victorian semi with modern kitchen, garage and nearby schools..
Three bedrooms with two doubles and one single bedroom
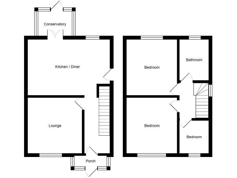
This three-bedroom Victorian semi offers practical living in a popular Shipley neighbourhood, aimed at first-time buyers and young families. The home features an open-plan kitchen/diner and a modern bathroom, so day-to-day living is straightforward from move-in.
Period features such as a stone facade and a cosy fireplace give character to the living spaces, while the kitchen and bathroom have more contemporary finishes. Upstairs provides two comfortable double bedrooms and a single third bedroom suitable for a child, guest or home office.
Externally there is a small enclosed rear garden, driveway parking and a detached single garage providing useful storage or secure parking. The property is freehold, in council tax band C, and sits close to good local schools and frequent public transport links.
Buyers should note the house is compact at around 722 sq ft with a small plot; some rooms are modest in size and the living room would benefit from light modernisation to maximise space and flow. Overall it’s a practical, characterful home with sensible updates required rather than major works.
3 bedroom semi-detached house for sale in West View Close, Shipley, West Yorkshire, BD18 — £269,950 • 3 bed • 1 bath • 905 ft²
3 bedroom semi-detached house for sale in Claremont Road, Shipley, West Yorkshire, BD18 — £180,000 • 3 bed • 1 bath • 731 ft²
3 bedroom semi-detached house for sale in Low Ash Grove, Shipley, BD18 1JL, BD18 — £195,000 • 3 bed • 2 bath • 550 ft²
3 bedroom semi-detached house for sale in Grosvenor Road, Shipley, BD18 — £275,000 • 3 bed • 1 bath • 724 ft²
3 bedroom terraced house for sale in Owlet Road , Shipley , BD18 — £150,000 • 3 bed • 1 bath • 1045 ft²
3 bedroom semi-detached house for sale in Denby Drive, Baildon, Shipley, West Yorkshire, BD17 — £184,500 • 3 bed • 1 bath • 841 ft²


























































