DE73 5SB - 3 bedroom detached house for sale in Derby Road, Chellaston…

View on Property Piper

3 bedroom detached house for sale in Derby Road, Chellaston, Derby, DE73

Summary - 139 DERBY ROAD CHELLASTON DERBY DE73 5SB

3 bed 1 bath Detached

Spacious family home with large garden and garage in popular Chellaston location.
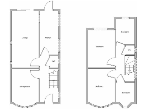
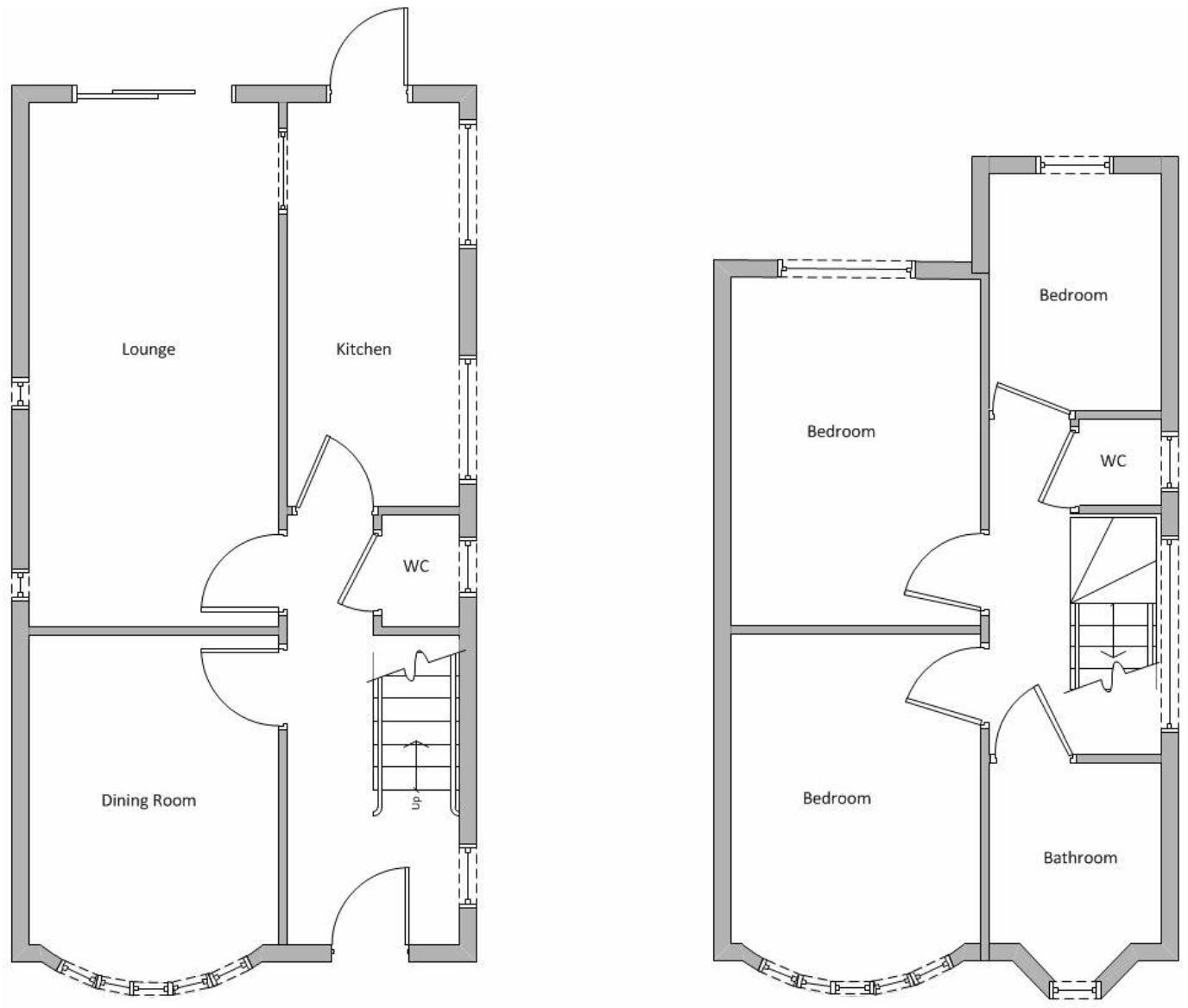
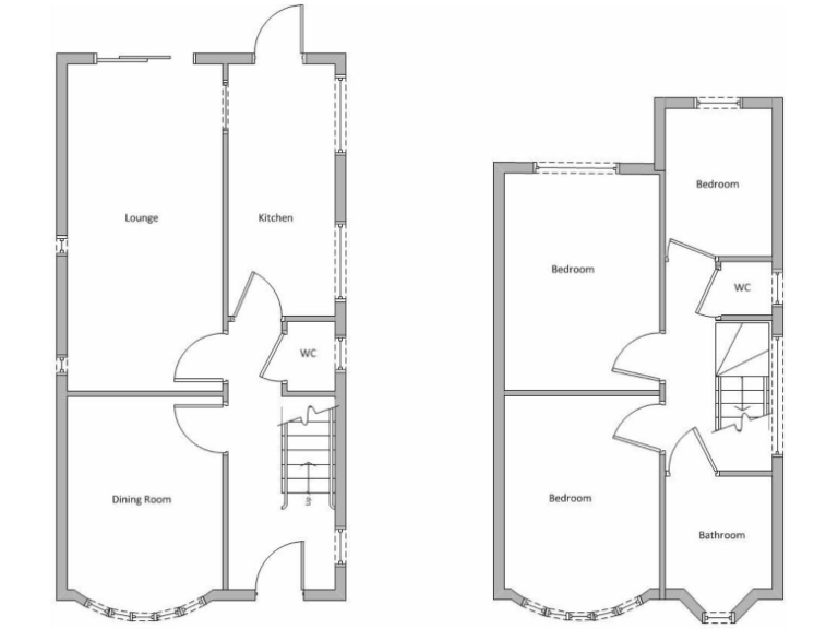
Detached three-bedroom 1930s character home with bay windows
This detached three-bedroom home on Derby Road offers spacious, well-proportioned living across an average-sized plot with a large rear garden and long driveway. The 1930s character (bay windows, arched entrance) combines with practical modern comforts: gas central heating and UPVC double glazing. A generous lounge and separate dining room give flexible family layout; the large garage and off-street parking add useful storage and parking capacity.

The garden is a standout: above-average size, established fruit trees, planters and a greenhouse — plenty of space for children, pets and vegetable growing. Local conveniences and good primary and secondary schools are close by, while excellent road links (A50, M1) suit commuters. Very low local crime, fast broadband and strong mobile signal support working from home.

The property is sold freehold and totals about 1,188 sq ft. The bathroom arrangement is non-standard: a shower‑bath with electric shower and hand basin, plus a separate WC room. Buyers seeking a fully modern bathroom suite or an en-suite addition should allow for refurbishment. Overall, the house presents immediate family living with scope to update and personalise over time.

Suitable for families or buyers wanting roomy accommodation in a comfortable suburb, the home offers character features and practical outdoor space, but expect cosmetic updating in wet areas and potential reconfiguration if you need an additional bathroom.

Property Details

Image Descriptions

Floorplan Description

Rooms

Textual Property Features

Target Audience

AI Tags

Detected Visual Features

Nearby Schools

Nearest Bars And Restaurants

,,,,}

Nearest General Shops

,,}

Nearest Grocery shops

,,}

Nearest Supermarkets

,,}

Nearest Religious buildings

,,}

Nearest Medical buildings

,,,}

Nearest Airports

}

Nearest Leisure Facilities

,,,,}

Nearest Tourist attractions

,,}

Nearest Train stations

,,,,}

Nearest Bus stations and stops

,,,,}

Nearest Hotels

,,}

Tags

Local Market Stats

Similar Properties

Meta

High Res Images

Compatible Images

Low res Images

Thumbnails

Raw Images

High Res Floorplan Images

Compatible Floorplan Images

Low res Floorplan Images

FloorplanImages Thumbnail

Raw Floorplan Images