Newly refurbished two-bed terrace moments from Ramsgate harbour and West Cliff views.
Freehold Victorian terrace with original floorboards and cast-iron radiators
Short walk to Royal Harbour, Spencer Square and West Cliff sea views
Newly refurbished; contemporary open-plan living and updated bathroom
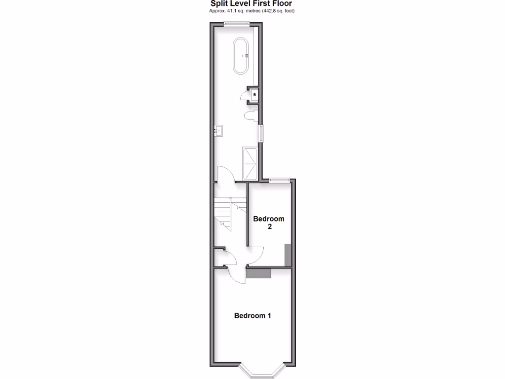
Small overall size (approx. 442 sq ft); compact rooms throughout
Solid brick walls—likely no cavity insulation; consider added insulation
Crime in the area is above average; wider area classed as very deprived
Fast broadband and excellent mobile signal; no flood risk
Low council tax; private low-maintenance rear garden
This two-bedroom Victorian terrace on Priory Road blends original character with a recent high-quality refurbishment. The open-plan layout and exposed brickwork create an inviting living space, while cast-iron radiators and original floorboards preserve period charm. Finished bathroom/shower room and a private low-maintenance rear garden make the house move-in ready with space for entertaining.
At about 442 sq ft, rooms are well-proportioned but the overall footprint is small—best suited to first-time buyers, a holiday retreat, or a downsizer wanting a coastal base. Constructed circa 1900–1929 with solid-brick walls, the property may benefit from added wall insulation and the double-glazing install date is unknown. Heating runs on mains gas with a boiler and radiators.
Location is a major asset: a short walk to Ramsgate’s Royal Harbour, Spencer Square and West Cliff sea views. Broadband speeds are fast and mobile signal is excellent. Practical positives include freehold tenure, low council tax and no flood risk. Be aware the neighbourhood shows signs of higher-than-average crime and the wider area registers as very deprived.
Overall this is a characterful, newly renovated terrace offering coastal convenience and low-maintenance outdoor space. Buyers seeking a compact, turnkey period home close to the seafront will find genuine appeal; anyone wanting substantial indoor space or guaranteed insulated walls should factor potential upgrades into their plans.
2 bedroom terraced house for sale in Boundary Road, Ramsgate, Kent, CT11 — £200,000 • 2 bed • 1 bath • 894 ft²
2 bedroom terraced house for sale in Alexandra Road, Ramsgate, Kent, CT11 — £250,000 • 2 bed • 2 bath • 1002 ft²
2 bedroom terraced house for sale in Townley Street, Ramsgate, CT11 — £240,000 • 2 bed • 1 bath • 676 ft²
3 bedroom end of terrace house for sale in Shaftsbury Street, Ramsgate, CT11 — £200,000 • 3 bed • 1 bath • 821 ft²
2 bedroom terraced house for sale in Lorne Road, Ramsgate, CT11 — £209,995 • 2 bed • 1 bath • 601 ft²
2 bedroom terraced house for sale in South Eastern Road, Ramsgate, Kent, CT11 — £225,000 • 2 bed • 1 bath • 934 ft²






































































