RM11 2QB - 5 bedroom detached house for sale in Nelmes Crescent, Emers…

View on Property Piper

5 bedroom detached house for sale in Nelmes Crescent, Emerson Park, Hornchurch, RM11

Summary - 18 NELMES CRESCENT HORNCHURCH RM11 2QB

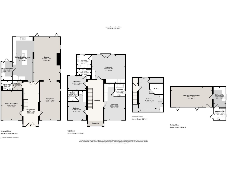
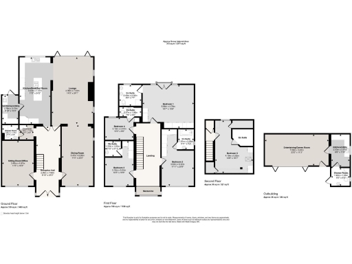
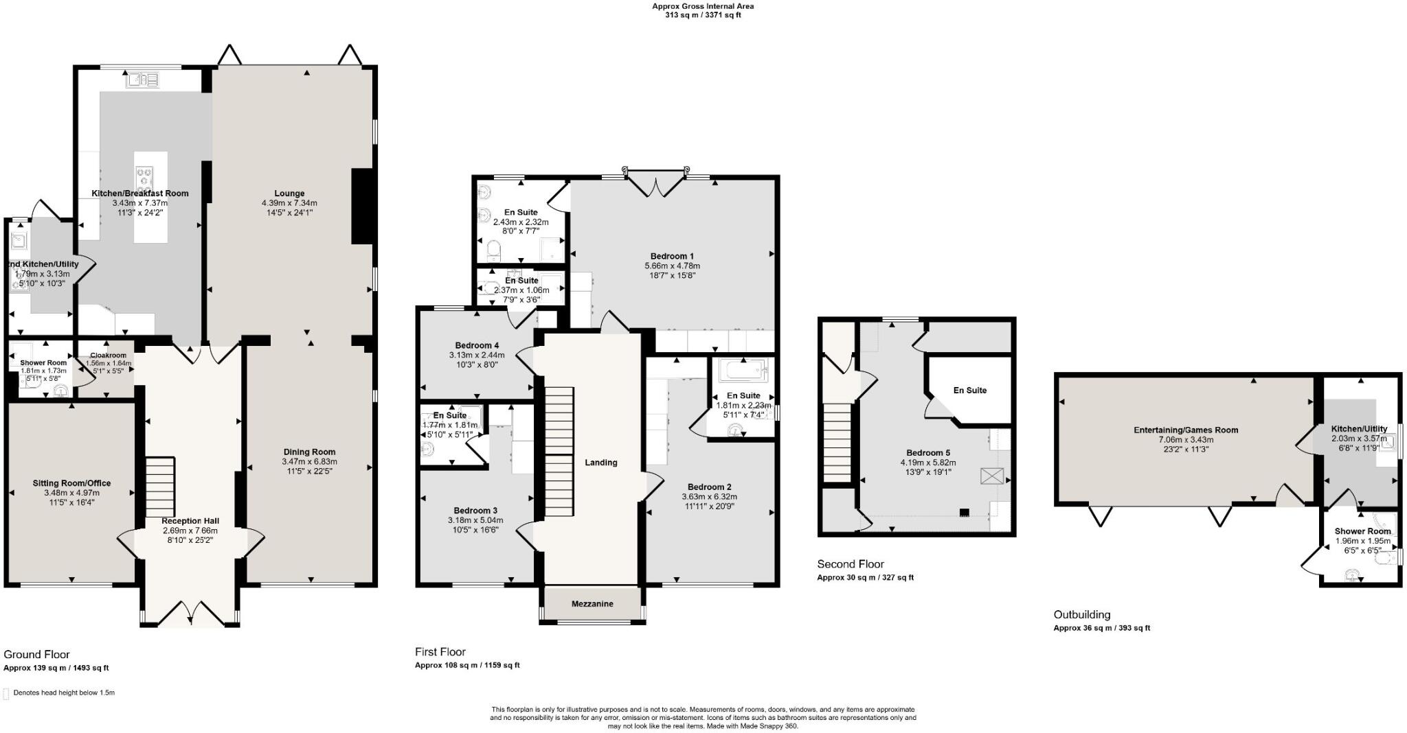
5 bed 6 bath Detached

**Standout Features:**
- Expansive detached family home with contemporary design
- Five bedrooms, all with en-suite bathrooms
- Significant outdoor space featuring a heated swimming pool
- Detached brick-built entertainment/games room/annexe
- Modern kitchen with high-end finishes and integrated appliances
- Underfloor heating throughout the ground floor
- Off-street parking with an electric car charging point
- Located in an affluent community with excellent schools nearby
- Very low crime rate and fast broadband speed

**Potential Concerns:**
- Council tax is on the higher side
- Solid brick walls with assumed no insulation
- Limited insulation between rooms may affect temperature control

**Summary:**
Discover the epitome of luxurious family living in this modern detached home set in the desirable Emerson Park area. Spanning 3,371 square feet, this property boasts five spacious double bedrooms, each with their own en-suite, ensuring comfort and privacy for every family member. The impressive open-plan kitchen and living areas are perfect for entertaining, complete with high-end finishes and skylights that flood the space with natural light.

Step outside to enjoy a sprawling, south-facing garden featuring mature landscaping, a heated swimming pool, and a separate games room—ideal for hosting summer gatherings or simply enjoying tranquil outdoor moments. With excellent local schools and a very low crime rate, this home is perfect for families seeking a vibrant, secure community. Though the property lacks insulation and comes with a high council tax band, its modern features and substantial plot present endless renovation possibilities. This exclusive residence is a rare find and won't stay on the market long, so schedule a viewing today to fully appreciate its offerings!

Property Details

Brochure Descriptions

Image Descriptions

Rooms

Textual Property Features

Detected Visual Features

EPC Details

Nearby Schools

Nearest Bars And Restaurants

,,,,}

Nearest General Shops

,,}

Nearest Grocery shops

,,}

Nearest Supermarkets

,,}

Nearest Religious buildings

,,}

Nearest Medical buildings

,,,}

Nearest Airports

,}

Nearest Leisure Facilities

,,,,}

Nearest Tourist attractions

,,}

Nearest Train stations

,,,,}

Nearest Bus stations and stops

,,,,}

Nearest Hotels

,,}

Tags

Local Market Stats

Similar Properties

Meta

High Res Images

Compatible Images

Low res Images

Thumbnails

Raw Images

High Res Floorplan Images

Compatible Floorplan Images

Low res Floorplan Images

FloorplanImages Thumbnail

Raw Floorplan Images