PE5 7AX - 2 bedroom semidetached house for sale in Peterborough Road,…

View on Property Piper

2 bedroom semi-detached house for sale in Peterborough Road, Castor, Peterborough, PE5

Summary - Peterborough Road, Castor, Peterborough PE5 7AX

2 bed 1 bath Semi-Detached

**Standout Features:**
- Charming two-bedroom semi-detached cottage in the picturesque village of Castor
- Spacious lounge with double barn-style doors leading to a courtyard garden, ideal for entertaining
- Country-style kitchen/dining area equipped with modern appliances
- Ground floor three-piece shower room for added convenience
- Separate utility/storeroom providing valuable storage space
- Off-street parking option available in the courtyard
- Built-in storage cupboards on the upper landing for organization
- Average crime rate, fast broadband speeds, and proximity to highly-rated local schools

**Property Summary:**
Discover the cozy charm of country living in this delightful two-bedroom cottage, nestled within the tranquil village of Castor. This semi-detached home boasts a spacious lounge that flows effortlessly into a private courtyard garden—perfect for social gatherings or quiet retreats. The country-style kitchen joins the dining area, creating a warm ambiance for family meals. Convenience is key with a ground-floor shower room and a separate utility/store room enhancing the property's functionality.

Upstairs, you'll find two generously-sized double bedrooms, complemented by a well-designed landing featuring built-in storage. With solid construction dating back before 1900, this cottage exudes rustic appeal while offering modern living conveniences. The property's location benefits from off-road parking and lush rural surroundings. Situated in a ‘prospering countryside life’ area, this home offers both comfort and future renovation potential.

Whether you're looking for a family residence or a serene countryside retreat, this property is an exceptional find at an attractive price of £325,000. Don’t miss the opportunity to own your slice of peaceful village life!

Property Details

Brochure Descriptions

Image Descriptions

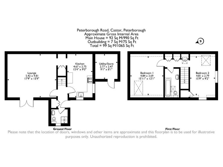
Floorplan Description

Rooms

Textual Property Features

Detected Visual Features

EPC Details

Nearby Schools

Nearest Bars And Restaurants

,,,,}

Nearest General Shops

,,}

Nearest Grocery shops

,,}

Nearest Supermarkets

,,}

Nearest Religious buildings

,,}

Nearest Medical buildings

,,,}

Nearest Leisure Facilities

,,,,}

Nearest Tourist attractions

,,}

Nearest Train stations

,,,,}

Nearest Bus stations and stops

,,,,}

Nearest Hotels

,,}

Tags

Local Market Stats

AirBnB Data

Similar Properties

Meta

High Res Images

Compatible Images

Low res Images

Thumbnails

Raw Images

High Res Floorplan Images

Compatible Floorplan Images

Low res Floorplan Images

FloorplanImages Thumbnail

Raw Floorplan Images