**Key Features:**
- Licensed HMO with a strong rental history.
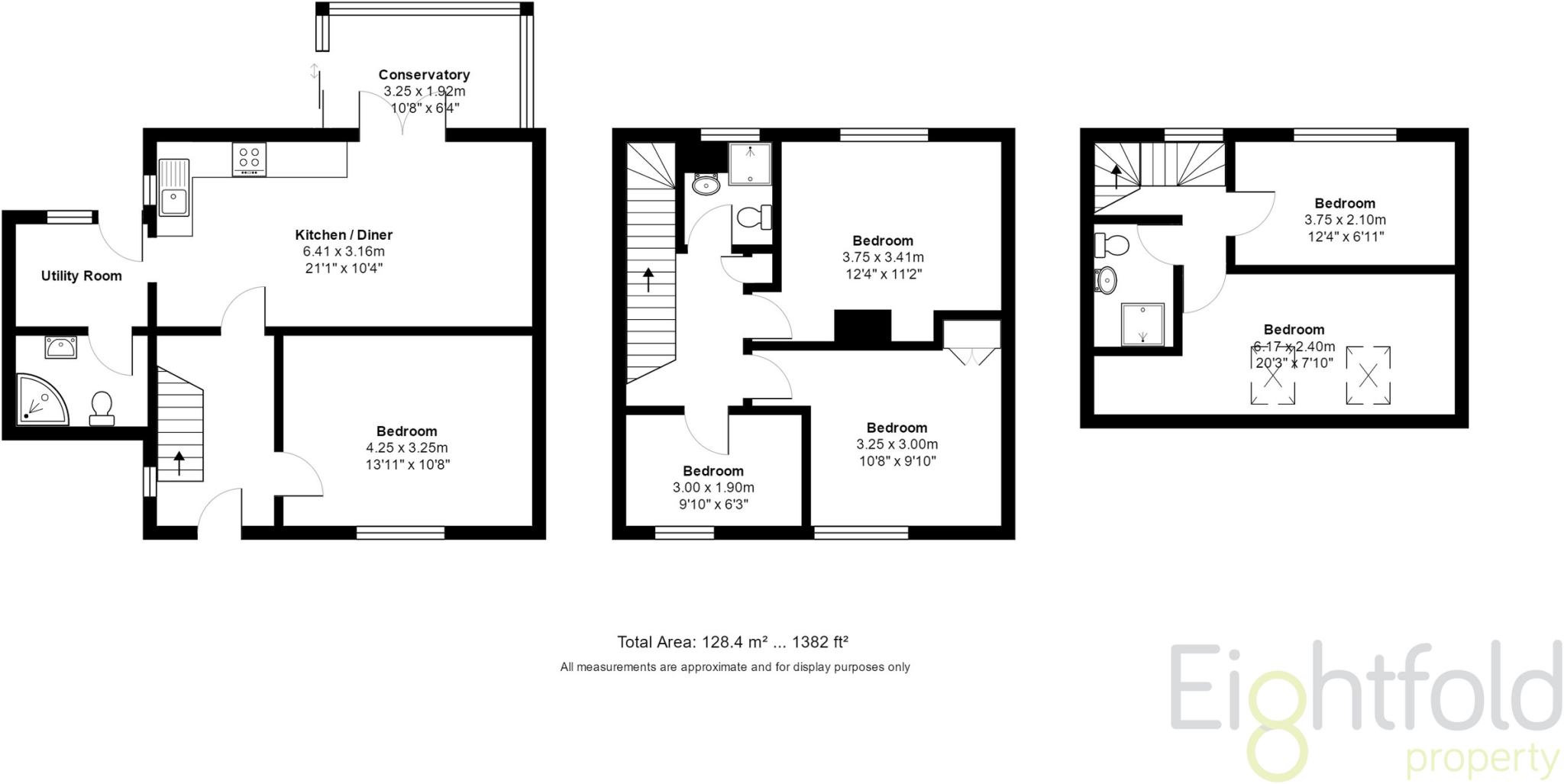
- Recently refurbished with six spacious bedrooms.
- Modern, mid-century style kitchen/diner opening to a conservatory.
- Three shower rooms and a utility room for convenience.
- Private, large rear garden providing outdoor space.
- Located close to universities, ideal for student rentals.
- Let for £3,358pcm, boasting a 9.5% return on investment.
- Chain-free and immediate rental income potential.
Nestled in the vibrant Coldean village, this semi-detached six-bedroom house is a prime opportunity for investors seeking a solid return in a desirable location. The spacious kitchen/diner, accentuated by modern wooden cabinetry and flowing into a light-filled conservatory, creates a captivating heart of the home. Each floor is thoughtfully designed, featuring ample shower facilities and generously sized bedrooms, perfectly suited for a student housing setup.
The property's private garden provides a serene escape, ideal for outdoor relaxation or social gatherings. This investment comes chain-free, ensuring a smooth transition to begin enjoying the impressive rental income immediately. While the location's crime levels are noted as high, the strong demand from students in this cosmopolitan area offsets this concern, highlighting a prime investment opportunity that’s hard to pass up. Secure your future with this exceptional property, ideally positioned to capitalize on the thriving university market.
 6 bedroom semi-detached house for sale in Ashburnham Drive, Brighton, East Sussex, BN1 — £500,000 • 6 bed • 2 bath • 1417 ft²
 6 bedroom semi-detached house for sale in Ashburnham Drive, Brighton, East Sussex, BN1 — £500,000 • 6 bed • 2 bath • 1417 ft² 6 bedroom terraced house for sale in Ewhurst Road, Brighton, BN2 — £500,000 • 6 bed • 2 bath • 1116 ft²
 6 bedroom terraced house for sale in Ewhurst Road, Brighton, BN2 — £500,000 • 6 bed • 2 bath • 1116 ft² 6 bedroom terraced house for sale in Old Shoreham Road, Brighton, BN1 — £550,000 • 6 bed • 2 bath • 1307 ft²
 6 bedroom terraced house for sale in Old Shoreham Road, Brighton, BN1 — £550,000 • 6 bed • 2 bath • 1307 ft² 5 bedroom terraced house for sale in Broadfields, Brighton, BN2 — £450,000 • 5 bed • 1 bath • 853 ft²
 5 bedroom terraced house for sale in Broadfields, Brighton, BN2 — £450,000 • 5 bed • 1 bath • 853 ft² 5 bedroom terraced house for sale in Hollingdean Road, Brighton, BN2 — £425,000 • 5 bed • 1 bath • 913 ft²
 5 bedroom terraced house for sale in Hollingdean Road, Brighton, BN2 — £425,000 • 5 bed • 1 bath • 913 ft² 6 bedroom terraced house for sale in Upper Lewes Road, Brighton, BN2 — £550,000 • 6 bed • 2 bath • 1417 ft²
 6 bedroom terraced house for sale in Upper Lewes Road, Brighton, BN2 — £550,000 • 6 bed • 2 bath • 1417 ft²










































































