Compact two-bedroom bungalow in peaceful over‑55s cul‑de‑sac, minutes from town and health services..
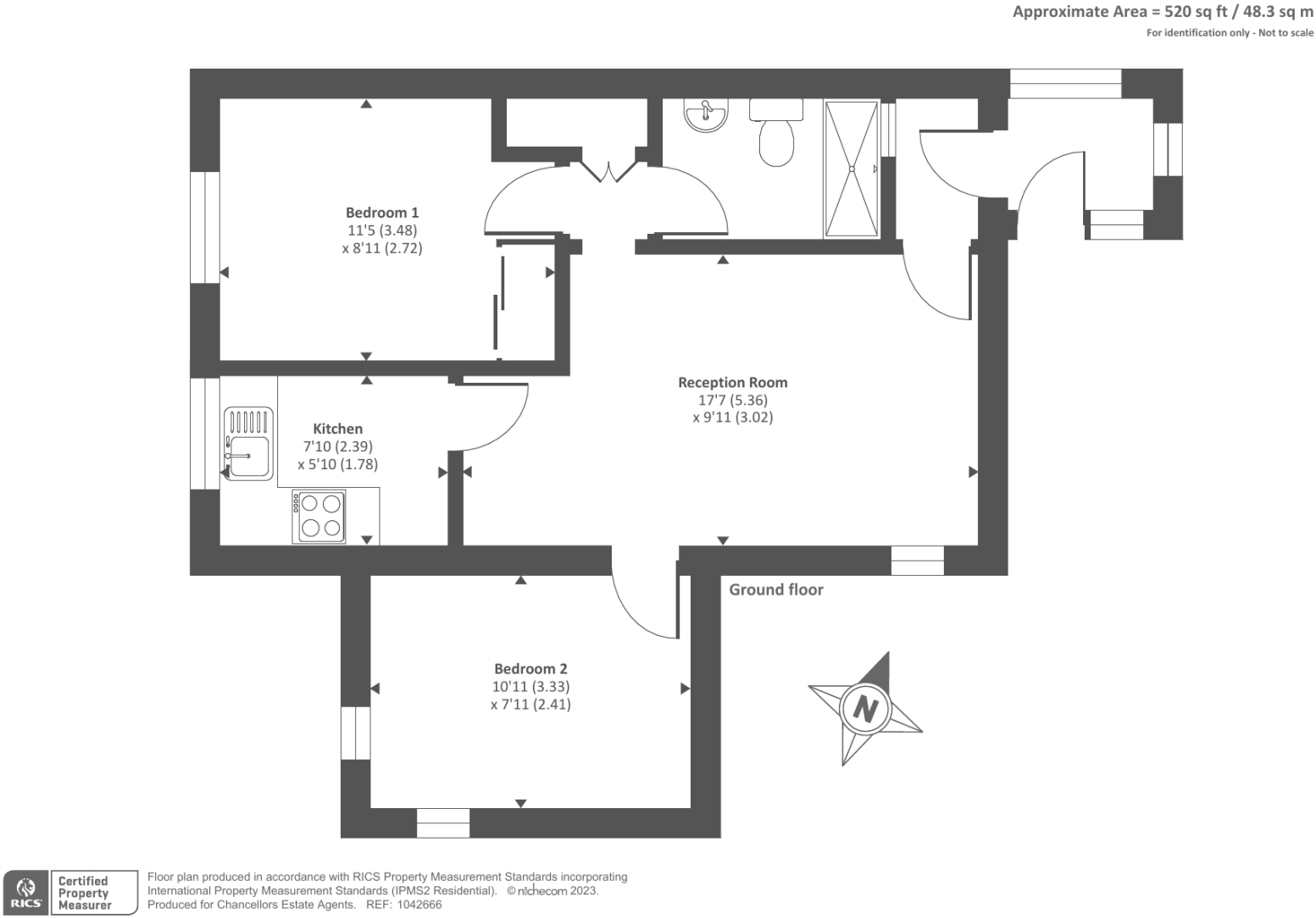
Two-bedroom single-storey bungalow, c.516 sq ft
Over-55s cul-de-sac — quiet, retirement-focused community
0.4 miles to Thame town centre; 0.2 miles to health centre
Communal gardens and off-street parking included
Leasehold with c.83 years remaining — limited term
Electric storage heating — potential higher running costs
Living room dated; cosmetic modernisation recommended
Slow broadband speeds despite excellent mobile signal
Light, low-maintenance and well-located, this two-bedroom bungalow sits in a quiet over-55s cul-de-sac just 0.4 miles from Thame town centre. The single-storey layout and communal gardens suit buyers seeking ease of movement and a small, manageable home close to local amenities including the health centre and shops.
Internally the layout is traditional: living room, kitchen, bathroom and two bedrooms within about 516 sq ft. The bathroom is described as modern and clean, but the living room and some finishes are dated and would benefit from cosmetic updating. Heating is by electric storage heaters, and the property relies on mains electricity rather than a communal system.
Practical considerations: this is a leasehold retirement property with a limited lease term reported (c.83 years remaining). Off-street parking and communal outdoor space add convenience, while broadband speeds are slow and some modernisation may be required to fully personalise the home. For buyers seeking a compact, low-upkeep bungalow near Thame’s services, this offers genuine convenience with clear renovation and tenure points to consider.
2 bedroom bungalow for sale in Park Court, Thame, Oxfordshire, OX9 — £250,000 • 2 bed • 1 bath • 475 ft²
2 bedroom semi-detached bungalow for sale in Thame, Oxfordshire, OX9 — £435,000 • 2 bed • 1 bath • 820 ft²
2 bedroom bungalow for sale in Central Thame, Oxfordshire, OX9 — £530,000 • 2 bed • 1 bath • 839 ft²
2 bedroom semi-detached bungalow for sale in Seven Acres, Thame, OX9 — £375,000 • 2 bed • 1 bath • 639 ft²
2 bedroom retirement property for sale in Thame, Oxfordshire, OX9 — £210,000 • 2 bed • 1 bath • 498 ft²
2 bedroom terraced bungalow for sale in Thame, Oxfordshire, OX9 — £530,000 • 2 bed • 1 bath • 979 ft²


























































































