Contemporary family home with sunny garden and energy-saving features.
4 double bedrooms across three floors
South-facing private garden with corner-plot outlook
Solar panels for reduced energy bills
Garage plus two private driveway parking spaces
Show home available to view (new-build marketing)
Overall internal size modest (~976 sq ft)
Bathroom count listed as 1; room layouts suggest ensuite and shower — verify
Tenure unspecified; local crime reported above average
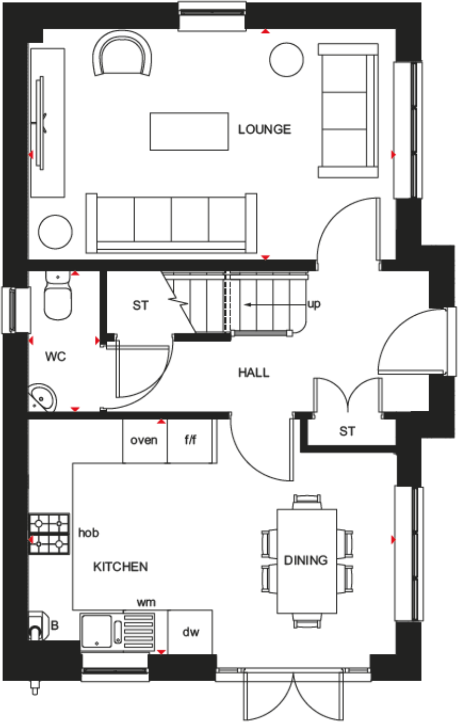
A bright, modern four-double-bedroom detached home arranged over three floors, set on a corner plot with a south-facing garden. The ground floor offers an open-plan kitchen/dining area with French doors to the garden and a separate lounge, creating practical family living and good natural light. Solar panels reduce running costs and the property includes a garage plus two private driveway parking spaces.
The layout suits growing families: an en suite main bedroom and additional bedroom on the first floor, with two further doubles on the top floor. Total internal size is modest (about 976 sq ft) so rooms are efficiently planned rather than generously proportioned. The developer describes the property as new build and it is marketed as a show home to view.
Notable practical points: the listing records one bathroom, though the room dimensions indicate an en suite, a shower room and a separate WC; prospective buyers should verify the exact sanitary provision and floorplan. Tenure is not specified. The area is very affluent with good schools nearby, excellent mobile signal and fast broadband, but local crime is reported as above average.
This home will suit families seeking a contemporary, low-maintenance new-build in a semi-rural Northamptonshire setting. It offers energy-saving solar panels and convenient parking, but buyers should confirm tenure, precise bathroom count and inspect room sizes to ensure the modest overall floor area meets their needs.
5 bedroom detached house for sale in Stratford Drive
Overstone
NN6 0RP, NN6 — £568,995 • 5 bed • 1 bath • 1275 ft²
4 bedroom detached house for sale in Stratford Drive
Overstone
NN6 0RP, NN6 — £419,995 • 4 bed • 1 bath • 942 ft²
4 bedroom detached house for sale in Stratford Drive
Overstone
NN6 0RP, NN6 — £477,995 • 4 bed • 1 bath • 1446 ft²
5 bedroom detached house for sale in Stratford Drive
Overstone
NN6 0RP, NN6 — £566,995 • 5 bed • 1 bath • 1275 ft²
4 bedroom detached house for sale in Stratford Drive
Overstone
NN6 0RP, NN6 — £418,995 • 4 bed • 1 bath • 976 ft²
4 bedroom detached house for sale in Stratford Drive
Overstone
NN6 0RP, NN6 — £419,995 • 4 bed • 1 bath • 942 ft²






































