Neutral décor, garage and private rear parking ideal for growing households.
Three bedrooms across two stories, suitable for a small family
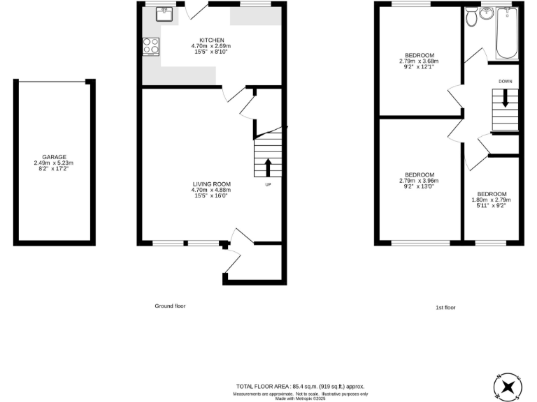
A well-presented mid-terraced home on Gander Green Lane, offering three bedrooms across two floors and a bright, contemporary living space. The lounge benefits from underfloor heating and the house has been rewired and replumbed during current ownership, reducing immediate major-maintenance concerns.
Outside there is a small courtyard garden with gated access to private rear parking and a detached garage — rare for this type and useful for families with a car or for storage. The neutrally finished interiors and practical kitchen provide straightforward move-in accommodation for a growing household or a buy-to-let opportunity in a strong Sutton suburb.
Practical points to note: the property has an EPC rating of D and sits on a modest plot; the building is a system-built type with assumed lack of wall insulation, which may mean improvement works for thermal performance are advisable. There is a single family bathroom and on-street front parking would require permission to create.
Situated close to well-rated primary and secondary schools, regular bus routes and local shops, the house suits buyers seeking sensible accommodation in an affluent, well-connected area. Freehold tenure, low local crime and fast broadband add to its everyday appeal, while the garage and potential to create front parking increase long-term flexibility.
3 bedroom end of terrace house for sale in Bushey Road, Sutton, SM1 — £650,000 • 3 bed • 1 bath • 1354 ft²
3 bedroom terraced house for sale in Nova Mews, Sutton, SM3 — £500,000 • 3 bed • 1 bath • 948 ft²
3 bedroom end of terrace house for sale in Matlock Crescent, Cheam, Sutton, SM3 — £595,000 • 3 bed • 2 bath • 1202 ft²
2 bedroom semi-detached house for sale in Norman Road, Sutton, SM1 — £475,000 • 2 bed • 1 bath • 638 ft²
3 bedroom terraced house for sale in Brocks Drive, Cheam, SM3 — £550,000 • 3 bed • 1 bath • 829 ft²
3 bedroom semi-detached house for sale in Gander Green Lane, Cheam, Sutton, SM3 — £575,000 • 3 bed • 2 bath • 985 ft²


















































