Three-bedroom period house with garden, attic extension potential and quick trains to central London.
- Three double bedrooms across two upstairs floors
- South‑facing courtyard‑style garden, low‑maintenance plot
- Double attic with extension potential (subject to planning)
- Recently refurbished family bathroom, contemporary finish
- Single family bathroom only; may suit older children or renovation
- Medium flood risk recorded for the area
- Above‑average local crime rates; small plot size
- Solid brick walls likely lack insulation; glazing install date unknown
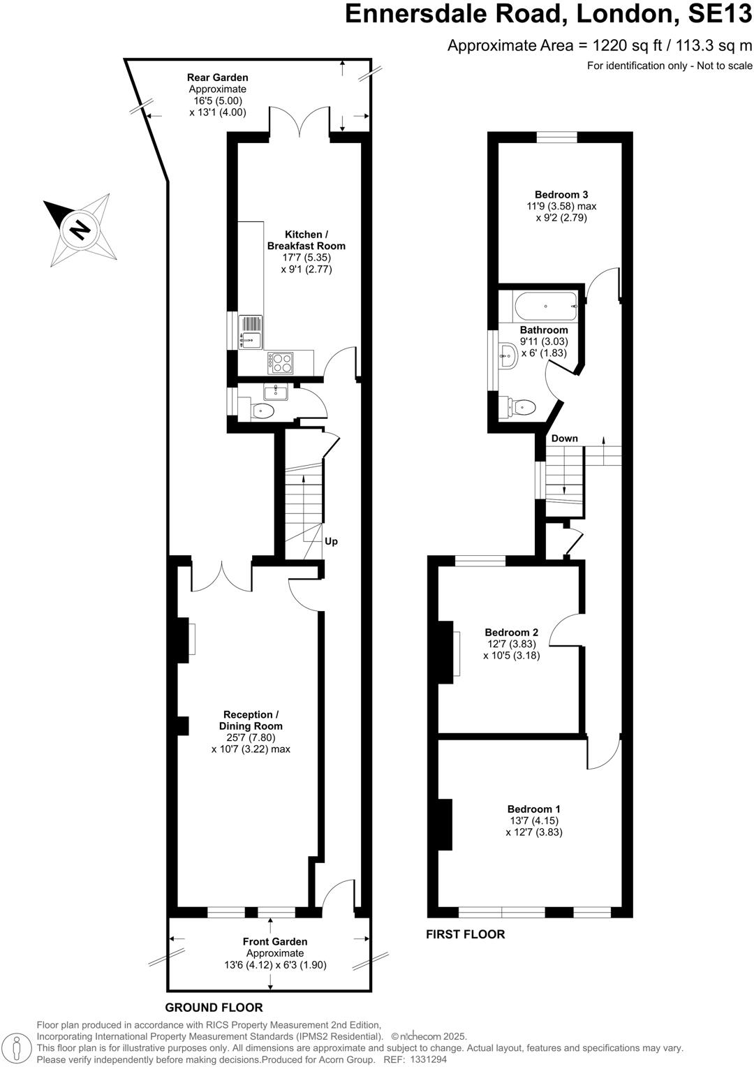
Set on a peaceful, tree‑lined street in Hither Green, this three‑double‑bedroom mid‑terrace blends period charm with practical family living. The through‑lounge retains high ceilings and a working fireplace, while large windows and an open-plan feel bring generous natural light into the main living areas. The kitchen-diner opens directly onto a south‑facing courtyard-style garden — a low‑maintenance outdoor space for eating outside and child play.
Upstairs are three well‑proportioned double bedrooms and a recently refurbished family bathroom with contemporary fittings. There is clear scope to increase living space: the property includes a double attic with potential to extend (subject to permissions). At approximately 1,230 sq ft, the home is scaled for family living yet remains manageable in size.
Location is a standout: Hither Green station is within a short walk with frequent 15‑minute services to London Bridge, and several highly regarded primary and secondary schools are nearby. Local parks, independent cafés and convenient shops are all within easy reach, supporting a comfortable daily routine for working parents and children.
Buyers should note material facts plainly: the plot is small and the property sits in an area with above‑average crime statistics and medium flood risk. The solid brick walls are likely uninsulated (as built), and the double‑glazing install date is unknown — both may require insulation or energy upgrades. There is only one family bathroom and limited outdoor space, so prospective buyers should consider whether further refurbishment or extension is needed to match long‑term family requirements.
3 bedroom house for sale in Ennersdale Road, London, SE13 — £725,000 • 3 bed • 1 bath • 1230 ft²
3 bedroom terraced house for sale in Leahurst Road, Hither Green, London, SE13 — £875,000 • 3 bed • 1 bath • 1087 ft²
3 bedroom terraced house for sale in Leahurst Road, London, SE13 — £900,000 • 3 bed • 2 bath • 1335 ft²
4 bedroom house for sale in Longhurst Road, London, SE13 — £950,000 • 4 bed • 1 bath • 1320 ft²
3 bedroom terraced house for sale in Nightingale Grove, London, SE13 — £600,000 • 3 bed • 2 bath • 1055 ft²
3 bedroom terraced house for sale in Hither Green, London, SE13 — £700,000 • 3 bed • 1 bath • 1215 ft²










































































