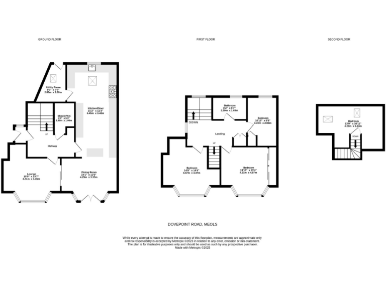
**Standout Features:**
- 4 bedrooms, including a versatile 4th room on the second floor with Velux windows
- Open plan living space with parquet flooring and wood burner
- Fully fitted breakfast kitchen with underfloor heating and easy access to the garden
- Downstairs shower room and utility room, enhancing functionality
- Detached garage and gated driveway
- Family-friendly location near top-rated schools, parks, and beach
- Chain free for a quick move
Welcome to this charming 4-bedroom detached home, perfect for families seeking space and comfort. The open plan living area seamlessly connects to a superb breakfast kitchen, featuring modern amenities like underfloor heating and a boiling hot water tap. The inviting living room boasts a wood burner and large windows that flood the space with natural light, creating a warm atmosphere. Upstairs, find three bedrooms and a family bathroom, while the flexible second-floor bedroom offers privacy and could serve as a home office or guest suite.
Enjoy the convenience of being just a short walk from shops and the station, making commuting a breeze. With lush gardens that are accessible from multiple points and a driveway leading to a detached garage, this home combines elegance and practicality. Situated within the desirable Great Meols Primary catchment, your family will thrive in this affluent area, where both parks and the beach are within easy reach. Given the welcoming features, prime location, and "no chain" advantage, this property is primed for quick interest – don’t miss your chance to make it your new family sanctuary!
4 bedroom detached bungalow for sale in Mumfords Lane, CH47 — £550,000 • 4 bed • 2 bath • 1329 ft²
4 bedroom detached house for sale in Guffitts Close, Wirral, Merseyside, CH47 — £550,000 • 4 bed • 2 bath • 1478 ft²
4 bedroom detached house for sale in Birkenhead Road, Meols, Wirral, CH47 — £625,000 • 4 bed • 2 bath • 1800 ft²
4 bedroom detached house for sale in Sherwood Road, CH47 — £595,000 • 4 bed • 2 bath • 2131 ft²
4 bedroom semi-detached house for sale in Queens Avenue, Meols, Wirral, CH47 — £460,000 • 4 bed • 1 bath • 1634 ft²
4 bedroom detached house for sale in Barnfield Close, Meols, Merseyside, CH47 — £400,000 • 4 bed • 1 bath • 1220 ft²


































































































































































