Chain-free, new-build family home with garden and driveway parking.
Three bedrooms with principal en-suite and family bathroom
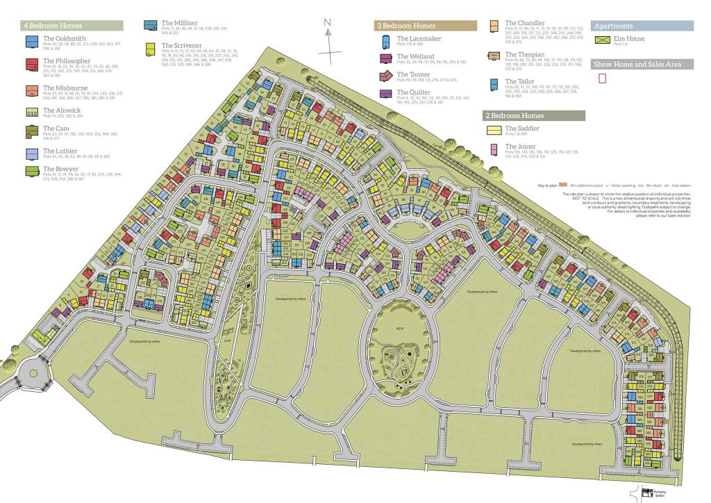
Set on the attractive New Cardington Fields development, this three-bedroom semi-detached home suits families seeking move-in-ready, modern living close to Bedford. The ground floor pairs a dual-aspect living room with a feature bay window and an open-plan kitchen/dining area that opens via French doors to the rear garden — ideal for everyday family life and informal entertaining.
Upstairs offers three bedrooms, including a principal bedroom with an en-suite, plus a family bathroom. At around 905 sq ft the layout makes efficient use of space, with practical touches such as understairs storage and off-street parking on the driveway. The home is freehold, chain free and comes with a 10-year NHBC Buildmark warranty for added peace of mind.
This plot benefits from strong local connections: fast broadband, excellent mobile signal, very low local crime and village-style surroundings with good access to Bedford’s amenities and nearby schools. The development is overseen by an award-winning site manager and the builder carries 5-star HBF recognition — helpful when buying new.
Practical considerations: the plot is modest in size, so outdoor space is limited compared with larger family gardens. There is an estate management charge of £138.19; council tax banding is to be confirmed. The home’s footprint is compact for a three-bedroom house, so buyers who need generous room sizes or substantially larger gardens should check the layout against their requirements.
3 bedroom detached house for sale in New Cardington Fields
Bedford,
Bedfordshire
MK42 0UQ, MK42 — £400,000 • 3 bed • 1 bath • 905 ft²
3 bedroom detached house for sale in New Cardington Fields
Bedford,
Bedfordshire
MK42 0UQ, MK42 — £400,000 • 3 bed • 1 bath • 905 ft²
4 bedroom detached house for sale in New Cardington Fields
Bedford,
Bedfordshire
MK42 0UQ, MK42 — £510,000 • 4 bed • 1 bath • 1338 ft²
4 bedroom detached house for sale in New Cardington Fields
Bedford,
Bedfordshire
MK42 0UQ, MK42 — £490,000 • 4 bed • 1 bath • 1197 ft²
4 bedroom detached house for sale in New Cardington Fields
Bedford,
Bedfordshire
MK42 0UQ, MK42 — £500,000 • 4 bed • 1 bath • 1374 ft²
3 bedroom semi-detached house for sale in New Cardington Fields
Bedford,
Bedfordshire
MK42 0UQ, MK42 — £367,500 • 3 bed • 1 bath • 788 ft²


























































