Elegant one-bedroom with lake views and allocated parking.
Grade II* listed Georgian manor house, built 1723
Soaring ceilings, panelled walls and large sash windows
Contemporary kitchen with integrated Neff appliances
Underfloor heating throughout for efficient warmth
Allocated off-street parking; visitor spaces available
114 years remaining on lease; leasehold tenure
Annual service charge £2,642.50; ground rent £300
Listed status restricts alterations; slow local broadband
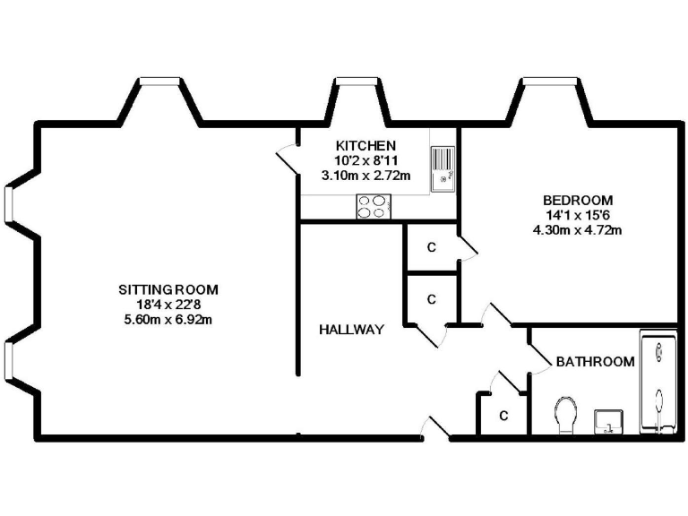
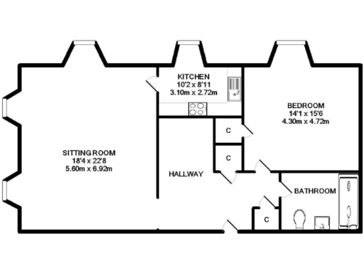
Set within the Grade II* listed Scraptoft Hall (1723), this ground-floor one-bedroom apartment combines original Georgian features with contemporary fittings. High ceilings, panelled walls and large sash windows give a strong sense of space, while a modern kitchen with integrated Neff appliances and underfloor heating provide everyday comfort.
The sitting room is generously proportioned and overlooks the estate’s landscaped communal grounds and ornamental lake, offering a tranquil outlook. Practical extras include allocated off-street parking, visitor spaces and a secure basement storage pod — useful for bikes or seasonal items.
Buyers should note the flat is leasehold with 114 years remaining, an annual service charge of £2,642.50 and ground rent of £300. The property’s Grade II* listed status means external and some internal works may be restricted and require Listed Building consent. Broadband performance in the area is reported as slow.
This apartment will suit someone wanting period character without sacrificing modern convenience — ideal as a distinctive first home or a character-led buy-to-let in a very affluent, low-crime neighbourhood. Legal checks on the lease are advised before committing.
2 bedroom apartment for sale in Stelle Way, Glenfield, Leicester, LE3 — £175,000 • 2 bed • 2 bath • 732 ft²
2 bedroom flat for sale in Knighton Haynes Manor, Stoneygate, Leicester, LE2 — £275,000 • 2 bed • 2 bath • 1421 ft²
1 bedroom ground floor flat for sale in Uppingham Road, Billesdon, LE7 — £160,000 • 1 bed • 1 bath • 581 ft²
2 bedroom flat for sale in Knighton Court, Stoneygate, LE2 — £175,000 • 2 bed • 1 bath • 742 ft²
1 bedroom apartment for sale in Forest Gate, Anstey, Leicester, LE7 — £169,950 • 1 bed • 2 bath • 725 ft²
1 bedroom apartment for sale in Princess Road East, Leicester, LE1 — £120,000 • 1 bed • 1 bath • 786 ft²






























